Ház
Origó
HázOrigoval pont a központban

Pest megye, Gödöllő


 

Ingatlan adatai

Irányár: 199 000 000 Ft
Típus: ház
Kategória: eladó
Alapterület: 516 m2
Fűtés: egyéb
Állapota: felújított
Szobák száma: 14
Építés éve: -
Szintek száma: -

Részletes leírás

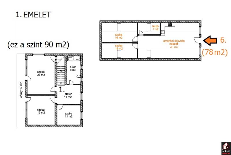
Eladó Gödöllő, Fenyves városrészén, a Fenyvesi Nagyúton egy jelenleg 6 darab apartmannak kialakított, 516 m2 hasznos alapterületű (bruttó 600 m2-es) épület, egy 1.408 m2-es telken.A telken jogilag is 2 db lakóház épült.A 3 szintes lakóházban 2 apartman, a 2 szintes lakóházban 3 apartman, és a tágas melléképületben 1 apartman lett kialakítva.A legnagyobb lakás az utcafronti házban, 3 szinten helyezkedik el. Összesen 240 m2. (az alaprajzon az 1-es apartman)A földszinti rész 60 m2, ami valójában egy tágas amerikai konyhát, a lépcsőházat és a teraszt jelenti.Az 1. emeleten 3 szoba, a kádas fürdőszoba és az erkély található, 90 m2-en.A 2. emeleten pedig beépíthető pluszban bruttó 90 m2. Vagy a lenti apartmant bővíthetjük még 3-4 szobával és egy újabb fürdőszobával, vagy kialakítható akár egy új, amerikai konyhás + 3 szobás + fürdőszobás apartman. (Az áram, víz, csatorna, fűtés feljön erre az emeletre, de ez a szint nincs kiépítve.)Innen az ablakból, az erkélyről GYÖNYÖRŰ PANORÁMA tárul a szemünk elé. A két épület közül ez a ház épült korábban, 1984-ben, és ez tavaly TELJESKÖRŰEN FEL LETT ÚJÍTVA. A villanyvezetékek, a gépészet, az ablakok, a burkolatok, a konyhabútor, minden új. (Igény esetén, mivel a lépcsőház az épület szélén található és kívülről még van hely a telken, így megoldható, hogy az emeleti részek, akár kívülről, közvetlenül megközelíthetőek legyenek.)Ugyanennek az épületnek a földszintjén, egy oldalsó bejárattal egy 28 m2-es kis apartman is helyet kapott. (az alaprajzon a 2-es apartman)A másik épület 2007-ben épült. Ez a ház földszint + egy emelet magas. (30 cm-es Porotherm téglából épült + szigetelés.)A földszinten két apartman található.Az egyik egy tágasabb nappali + 2 szobás, 78 m2-es, sarokkádas külön fürdő, külön wc-vel rendelkező modern apartman. (az alaprajzon a 4-es apartman)A másik kisebb, összesen 32 m2-es lakrész.Itt jelenleg egymás mellett van maga a lakás és a fürdőszoba, amit külön ajtón keresztül közelíthetünk meg, de megoldható, hogy a fürdő a lakásból belülről nyíljon, vagy a fedett terasz egy kis részének beépítésével egy tágas előszobából nyílhatna a szoba is és a fürdőszoba is. (az alaprajzon a 3-as apartman)Ennek az épületnek az emeletén, külső lépcsőn megközelítve, egy nappali + 2 szobás, bruttó 78 m2-es lakásba jutunk. (az alaprajzon a 6-os apartman)A fűtés mindkét lakóházban, azaz a fentebb felsorolt apartmanokban gázkazán és vegyes tüzelésű kazánnal is megoldható.A melléképületben kialakított apartmanban csak fa tüzelésű kazán van.A melléképületben kialakított apartmanban pedig egy stúdiólakás lett kialakítva. (60 m2). A tágas térből csak a fürdőszoba van külön helyiségben. Tartozik hozzá egy méretes fedett terasz is. (az alaprajzon az 5-ös apartman)De megoldható, hogy kényelmesen leválasszunk egy hálószobát is.Vagy ha nyitottak vagyunk némi átalakításra, akkor 2 pici apartman is lehet belőle. Ezesetben egy plusz fürdőszobát kell ide kiépítenünk. De ez megoldható.A telken 2 db vízóra, 2 db villanyóra és 2 db gázóra található. Egyik a 3 szintes épületé, a másik pedig a többié.Az apartmanok egy része felújított, a más része felújításra szorul.Kiváló lehetőség befektetőknek, vagy bárkinek, aki a kiadott ingatlanjaiból szeretne megélni....és ha nem ijed meg egy kis átalakítástól, akkor a 6 helyett, akár 8 apartman is kiépíthető.(A fentebb leírtak szerint.)Siófoki csere vagy kisebb ingatlan beszámítása szóba jöhet.Hívjon, akár az esti órákban, akár hétvégén is!

További adatok

Telekterület: 1 408 m2
Kert mérete: 1 408 m2
Erkély mérete: -
Felszereltség: -
Parkolás: -
Kilátás: -
Egyéb extrák:  
-

Hirdető adatai

Hirdető neve: Új Élet Ingatlan
Kapcsolattartó: Barsi Judit
Hirdető telefonszáma: +36306910408
Honlap: -