Ház
Origó
HázOrigoval pont a központban

Pest megye, Pilisszántó


 

Ingatlan adatai

Irányár: 87 900 000 Ft
Típus: ház
Kategória: eladó
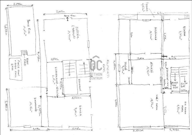
Alapterület: 336 m2
Fűtés: gáz (cirko)
Állapota: -
Szobák száma: 6
Építés éve: 1980
Szintek száma: -

Részletes leírás

Keresi az álomotthonát, amelynek minden igényét kielégíti? Akkor ne keressen tovább, mert megtalálta! Eladó egy 336 nm-es használt ház Pest vármegyében, Pilisszántó városában, a Vörösmarty utcában. Az ingatlan 1900 nm-es telken fekszik, és ideális családi otthonnak vagy befektetésnek egyaránt. Az ingatlan 6 szobával és 2 fürdőszobával rendelkezik, valamint 2 garázs férőhellyel. A tágas nappaliban kényelmesen elfér a család és a barátok is. Az ingatlan állapota felújítandó, de bővítési lehetőségekkel rendelkezik, így bármilyen elképzelés megvalósítható. A környék csendes és biztonságos, így ideális hely családoknak. A közlekedés kitűnő, az autópálya könnyen elérhető, és a tömegközlekedés is kiváló. A környék előnyös adottságai közé tartozik a zöld környezet, ahol a természet közelsége biztosítja a nyugodt életet. Az ingatlan fűtése gáz (cirko), és az építhető ingatlan típusa szabadon választható. Lehetséges funkciói közé tartozik például családi ház, nyaraló vagy befektetési cél. Ha szeretne többet megtudni erről az ingatlanról, vagy szeretne megtekinteni, akkor hívjon bizalommal! Ne habozzon, hívjon minket még ma, és legyen az álmai otthonának boldog tulajdonosa!

További adatok

Telekterület: 1 900 m2
Kert mérete: 1 900 m2
Erkély mérete: -
Felszereltség: -
Parkolás: -
Kilátás: -
Egyéb extrák:  
-

Hirdető adatai

Hirdető neve: Otthon Centrum
Kapcsolattartó: Nándori Ferenc
Hirdető telefonszáma: +36 70 716 9571
Honlap: -