Ház
Origó
HázOrigoval pont a központban

Zala megye, Cserszegtomaj


 

Ingatlan adatai

Irányár: 189 900 000 Ft
Típus: ház
Kategória: eladó
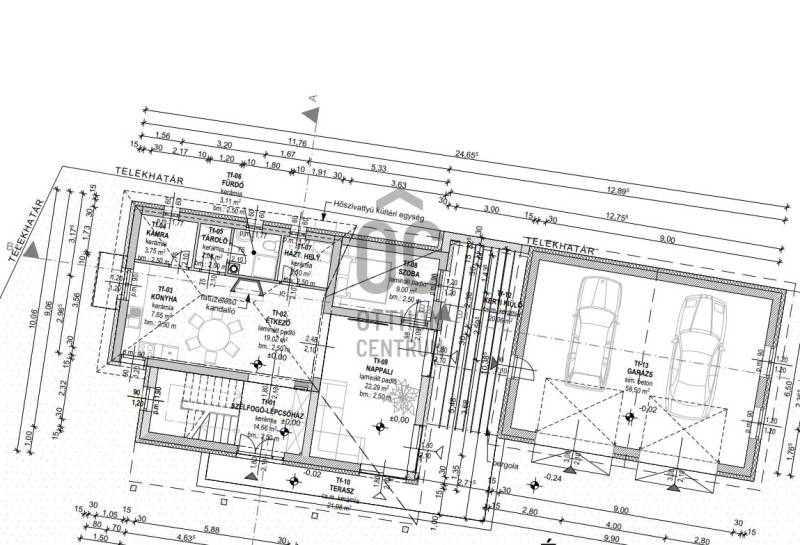
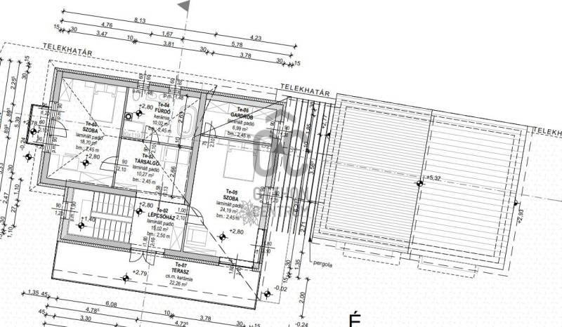
Alapterület: 220 m2
Fűtés: elektromos
Állapota: új
Szobák száma: 4
Építés éve: 2024
Szintek száma: -

Részletes leírás

Kedves Érdeklődő!Kiváló lehetőséget kínálunk Önnek, ha egy új, prémium minőségben épített , 220 nm-es házat keres Zala vármegyében, Cserszegtomaj városában.Az azonnal birtokba vehető otthont egy 1386 nm-es telek veszi körül ami termő gyümölcsfákkal tarkított.A családi otthon azonnal birtokba vehető.Impozáns, világos terek jellemzik. 2 nappalival, terasszal, erkéllyel, padlófűtéses garázzsal ( 60 m2).Egész családja számára kényelmet nyújt.Az ingatlan állapota kiváló, és a hőszivattyús fűtésnek köszönhetően rendkívül gazdaságos. A ház 4 szobával és 2 fürdőszobával rendelkezik, valamint egy 23 nm-es terasszal és egy 16 nm-es erkéllyel, amelyekről gyönyörű panoráma nyílik. Az ingatlanban található 2 garázs férőhely, és az ingatlan építhető ingatlan típusa és lehetséges funkciója is számos lehetőséget kínál.A környék csendes és biztonságos, ideális választás középkorúak számára. A közlekedési lehetőségek kiválóak, és az autóval történő közlekedés mellett a tömegközlekedés is könnyen elérhető.Ha szeretne többet megtudni erről a fantasztikus ingatlanról, vagy kérdése lenne, ne habozzon felvenni velünk a kapcsolatot. Ügyfeleink bizalommal fordulhatnak hozzánk bármilyen kérdéssel vagy kéréssel kapcsolatban. Várjuk jelentkezésüket! Üdvözlettel, Az ingatlanközvetítő csapata

További adatok

Telekterület: 1 386 m2
Kert mérete: 1 386 m2
Erkély mérete: 39 m2
Felszereltség: -
Parkolás: -
Kilátás: -
Egyéb extrák:  
-

Hirdető adatai

Hirdető neve: Otthon Centrum
Kapcsolattartó: Somodi Linda
Hirdető telefonszáma: +36 70 461 9651
Honlap: -