Ház
Origó
HázOrigoval pont a központban

Pest megye, Tápiószentmárton


 

Ingatlan adatai

Irányár: 17 000 000 Ft
Típus: telek
Kategória: eladó
Alapterület: 900 m2
Fűtés: -
Állapota: -
Szobák száma: -
Építés éve: -
Szintek száma: -

Részletes leírás

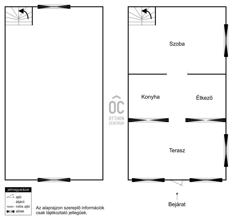
Eladó egy 45 nem négyzetméteres nyaraló Tápiószentmártonban! Ez a bájos ingatlan egy szép utcában helyezkedik el, és ideális választás lehet azok számára, akik szeretnének egy csendes környezetben pihenni és feltöltődni. A nyaraló két szintes, ami további lehetőségeket kínál az elrendezés tekintetében.Az ingatlan jelenleg egy fürdőszobával és wc-vel, valamint egy szobával rendelkezik. Bár felújítandó állapotban van, fantasztikus lehetőségek rejlenek benne, hogy saját ízlésére alakítsa át.A fűtést elektromos rendszer biztosítja, ami praktikus és könnyen szabályozható. Az ingatlan csupán 100 méterre található a nagy fűrdőtől, így könnyedén hozzáférhet a fürdőzés lehetőségéhez. Emellett a buszmegálló mindössze 1 percre, a bevásárlási lehetőségek pedig 5 percre vannak, így mindennapi kényelmét is biztosítva van.Ne hagyja ki ezt a remek lehetőséget, és vegye fel velünk a kapcsolatot még ma, hogy megtekinthesse ezt a varázslatos nyaralót!

További adatok

Telekterület: 900 m2
Kert mérete: -
Erkély mérete: -
Felszereltség: -
Parkolás: -
Kilátás: -
Egyéb extrák:  
-

Hirdető adatai

Hirdető neve: Otthon Centrum
Kapcsolattartó: Székiné Scher Judit
Hirdető telefonszáma: +36 70 388 5211
Honlap: -