Ház
Origó
HázOrigoval pont a központban

Hajdú-Bihar megye, Egyek


 

Ingatlan adatai

Irányár: 9 900 000 Ft
Típus: ház
Kategória: eladó
Alapterület: 71 m2
Fűtés: gáz (konvektor)
Állapota: -
Szobák száma: 3
Építés éve: 1960
Szintek száma: -

Részletes leírás

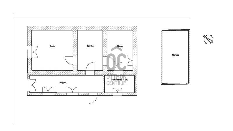
A Tisza-tó régióhoz tartozó Egyeken, az élő Tiszától 6 km-re, csendes utcában családi ház eladó.Egyek Hajdú-Bihar vármegye nyugati szegletében a Tiszához közel helyezkedik el, ahol a település határáig lenyúlik a Hortobágyi Nemzeti Park. A Nagyközségben a mindennapi élethez szükséges hivatalok, iskolák, óvodák, posta, boltok mind megtalálhatók. Aki nyugodt, csendes életre vágyik érdemes tovább olvasnia!Az eladásra kínált ház vályogból épült, 108 nm alapterületű. A telek 1035 nm. A fűtés gázkonvektoros. Az épületben 2 szoba, egy nappali, konyha és fürdőszoba lett kialakítva. Az épület mellett egy lemezgarázs is található. Remek családi ház, természetesen a településen a FALUSI CSOK is elérhető, így a leendő tulajdonos akár ebben is gondolkozhat!Kiváló lehetőség mindazoknak, akik a vidéki élet nyugalmát és a környezet adta természeti kincseket szeretnék kiélvezni. Legyen akár család alapítás előtt, akár már gyermekekkel, vagy csak egyszerűen pihenni szeretne egy vidéki családi otthonban.Amennyiben további felvilágosítást szeretne, keressen bizalommal!Teljes körű hitel ügyintézéssel és az ingatlan adásvételéhez szükséges ügyvédi háttérrel is állok a vevőjelöltek rendelkezésére.#egyek #tiszato #horgaszat #családi #nyaralas #befektetes #elado #csendes #rendezett #beköltözheto #befektetes #sale #summer #relax #falusiturizmus #tiszalake #callme

További adatok

Telekterület: 1 035 m2
Kert mérete: 1 035 m2
Erkély mérete: 15 m2
Felszereltség: -
Parkolás: -
Kilátás: -
Egyéb extrák:  
-

Hirdető adatai

Hirdető neve: Otthon Centrum
Kapcsolattartó: Lang Zsolt
Hirdető telefonszáma: +36 70 412 3651
Honlap: -