Ház
Origó
HázOrigoval pont a központban

Budapest, XI.kerület


 

Ingatlan adatai

Irányár: 385 000 000 Ft
Típus: ház
Kategória: eladó
Alapterület: 193 m2
Fűtés: -
Állapota: -
Szobák száma: 5
Építés éve: 2019
Szintek száma: -

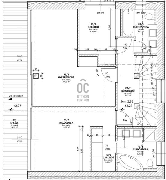
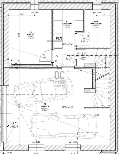
Részletes leírás

Ez az ajánlat biztosan tetszeni fog Önnek a személyes megtekintéskor a kitűnő minősége, remek beosztása, csodálatos kertje, panorámája miatt is.Örömmel ajánlom Önnek, amennyiben mindezek fontos szempontok az ÚJ OTTHONA megtalálásakor.Ha olyan otthonról álmodozik, ahol a nyugalom, a kényelem és a luxus összefonódik a modern életstílussal, akkor ne keressen tovább, mert megtalálta.HÁZRÓL:- bruttó 222 nm-es, 3 szintes,- déli tájolású, rendkívül világos, magával ragadó hangulatú,- 2019-ben épült, azóta folyamatosan karbantartott, gondozott,- amerikai konyhás nappali + 4 szobás, 3 fürdőszobás, gardrób szobás,- konyha mellett nagyon praktikus kamra található,- minden részletében átgondolt, letisztult formavilágú, modern megjelenésű, - a nappali élettérnél teljes falszélességű, hatalmas, 5 légkamrás, alumínium ablakokon gyönyörködhetünk a kilátásban,- 38 nm-es terasz kapcsolódik a nappalihoz, - legalsó szinten található a 2 állásos garázs,- INNOVATÍV ENERGIAFELHASZNÁLÁSÚ épület.Ahogy az a mellékelt alaprajzon is látszik a földszinten lett kialakítva a nappali élettér, az emeleten található két panorámás hálószoba, egy dolgozószoba, gardrób helyiség és két fürdőszoba. A fürdőszobákban zuhanyzó illetve kád is található. A legalsó szinten a kétállásos garázs, egy 12 nm-es stúdió szoba és a hőszivattyú (GREE) gépháza kapott helyet. Kérésre további képeket is küldök.KÖRNYEZET:- gyönyörű, különleges növényekkel beültetett, csendes SAJÁT KERT, - eső érzékelős locsoló rendszer, külön kerti vízórával,- a kertben saját játszótér,- gyümölcsfák, szeparált zöldséges mini-kert,- 2 autó számára beállási lehetőség.SZÁMOS ELŐNYE MELLETT TOVÁBBI POZITÍVUMOK:- 15 cm-es Austrotherm grafit külső hőszigetelés,- HŐSZIVATTYÚS HŰTÉS + FŰTÉS (padló + mennyezet fűtés valamint mennyezet hűtés)- 5 légkamrás, alumínium terasz-tolóajtók,- emeleten törésálló ablakok,- minden ablakon elektromos, prémium zsaluzia (Smart Home opcióval),- eloxált alumínium korlátok,- beépített egyedi gyerekszoba bútor,- beépített egyedi konyhabútor, konyhai gépekkel (Bosch) és konyhaszigettel,- riasztórendszer és napelem előkészítés.INFRASTRUKTÚRA:Kiváló intézményi infrastruktúra és remek közlekedés jellemzi a környéket. Közelben több közkedvelt oktatási intézmény, orvosi rendelő, POSTA, gyógyszertár, vásárlási és sportolási lehetőség is található. Autóval pár perc alatt elérhető az M7-es, M1-es autópálya, gyalog 3 perc séta a buszmegálló. Biztonságos, családias környezet, összetartó lakóközösség.Ne hagyja ki ezt a remek lehetőséget, hogy Öné legyen Budapest budai oldalának, új építésű, kertvárosi életstílusának egy darabja.Nézzük meg együtt, mert érdemes!

További adatok

Telekterület: 660 m2
Kert mérete: 660 m2
Erkély mérete: 54 m2
Felszereltség: -
Parkolás: -
Kilátás: -
Egyéb extrák:  
-

Hirdető adatai

Hirdető neve: Otthon Centrum
Kapcsolattartó: Jauch Hedvig
Hirdető telefonszáma: +36 70 716 9791
Honlap: -