Ház
Origó
HázOrigoval pont a központban

Győr-Moson-Sopron megye, Győr


 

Ingatlan adatai

Irányár: 250 000 000 Ft
Típus: ház
Kategória: eladó
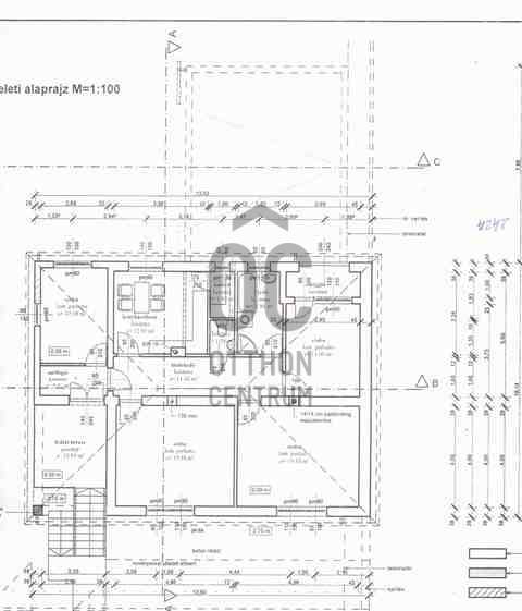
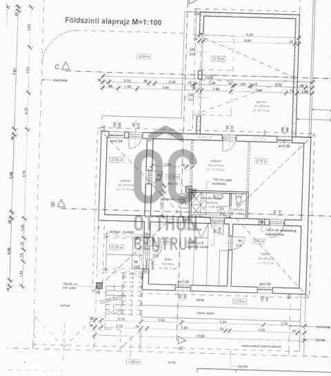
Alapterület: 420 m2
Fűtés: gáz (cirko)
Állapota: -
Szobák száma: 4
Építés éve: 2000
Szintek száma: -

Részletes leírás

KIZÁRÓLAG AZ OTTHON CENTRUMNÁL, KIZÁRÓLAG NÁLAM!Győr-Nádorvárosban kevés, zömében kisebb alapterületű, kevésbé szem előtt lévő, nehezen parkolható családi házat vagy üzlethelyiségeket találunk, mindezt elég borsos árakon!! A családi ház jelenleg irodaként működik de kitűnő helyet ad akár több lakás, vagy több generáció számára, vagy mindkettőnek egyaránt!!A részletek magukért beszélnek:- 600nm-es telek, körbekerítve!- Nagy terek, ideális akár több generáció számára is- Lakni és vállalkozni? Itt ez is működik!!- Térkövezett udvar, KIVÁLÓ PARKOLÁSI LEHETŐSÉG- Ideális otthon, akár két külön bejáratú lakrésszel- Ráfordításmentes, kitűnő műszaki és esztétikai állapot!- 2 szinten jelenleg 420nm áll a rendelkezésünkre- 2 Garázs- Tetőtér beépíthető- Kitűnő bérbeadási feltételek- Győr-Nádorvárosban ilyen adottságú ingatlan, ilyen áron nincs- Magas műszaki tartalom- Minőségi beépített bútorok, gépek- 3 fázis, korszerű szigetelés, nyílászárók- Könnyen fenntartható

További adatok

Telekterület: 600 m2
Kert mérete: 600 m2
Erkély mérete: 15 m2
Felszereltség: -
Parkolás: -
Kilátás: -
Egyéb extrák:  
-

Hirdető adatai

Hirdető neve: Otthon Centrum
Kapcsolattartó: Kovács László
Hirdető telefonszáma: +36 70 469 3826
Honlap: -