Ház
Origó
HázOrigoval pont a központban

Győr-Moson-Sopron megye, Győr


 

Ingatlan adatai

Irányár: 250 000 000 Ft
Típus: iroda
Kategória: eladó
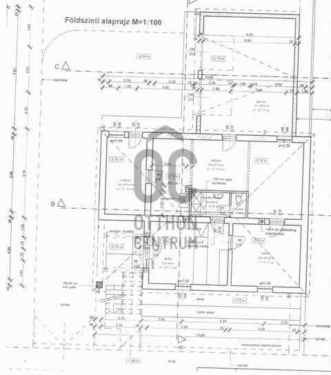
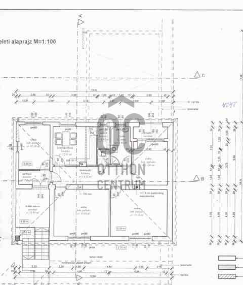
Alapterület: 420 m2
Fűtés: -
Állapota: -
Szobák száma: -
Építés éve: 2000
Szintek száma: -

Részletes leírás

KIZÁRÓLAG AZ OTTHON CENTRUMNÁL,KIZÁRÓLAG NÁLAM!Győr-Nádorvárosban kevés, zömében kisebb alapterületű, kevésbé szem előtt lévő, nehezen parkolható irodát vagy üzlethelyiségeket találunk, mindezt elég borsos árakon!!A részletek magukért beszélnek:- 600nm-es telek, körbekerítve!- Térkövezett udvar, KIVÁLÓ PARKOLÁSI LEHETEŐSÉG- Forgalmas főútvonalról közvetlen megközelíthető- Jól látható- Ráfordításmentes, kitűnő műszaki és esztétikai állapot!- 2 szinten jelenleg 420nm áll a rendelkezésünkre- Tetőtér beépíthető- Kitűnő bérbeadási feltételek- Győr-Nádorvárosban ilyen adottságú ingatlan, ilyen áron nincs- Magas műszaki tartalom- Minőségi beépített bútorok, gépek- 3 fázis, korszerű szigetelés, nyílászárók- Könnyen fenntartható- Rugalmas ügyintézés!Kérdéseivel, észrevételeivel kérem keressen!Köszönöm

További adatok

Telekterület: -
Kert mérete: -
Erkély mérete: -
Felszereltség: -
Parkolás: -
Kilátás: -
Egyéb extrák:  
-

Hirdető adatai

Hirdető neve: Otthon Centrum
Kapcsolattartó: Kovács László
Hirdető telefonszáma: +36 70 469 3826
Honlap: -