Ház
Origó
HázOrigoval pont a központban

Baranya megye, Mindszentgodisa


 

Ingatlan adatai

Irányár: 15 950 000 Ft
Típus: kereskedelmi/ipari ingatlan
Kategória: eladó
Alapterület: 380 m2
Fűtés: -
Állapota: -
Szobák száma: -
Építés éve: 1980
Szintek száma: -

Részletes leírás

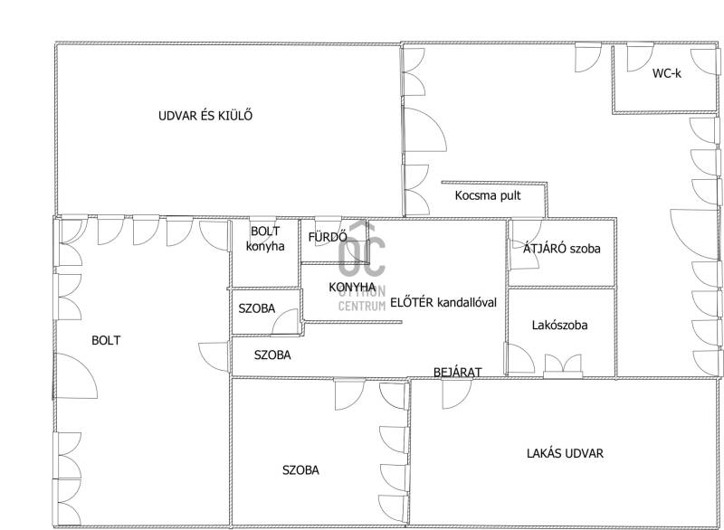
Mindszentgodisán, a templom mögött eladó két épületből álló lapostetős, 380 négyzetméteres üzlethelyiség, melyben egy lakás is kialakításra került. 1288 négyzetméteres telken. Az üzletekben a 130 négyzetméteres kocsma, és a 120 négyzetméteres helyi bolt működött nem is olyan régen, kis kiülős helyiséggel is rendelkezik. A hátsó részben elhelyezkedő, 90 négyzetméteres lakásban 3 és fél szoba, konyha, fürdőszoba található, egy zárt kis udvarral. Az üzletekben a meleget vegyestüzelésű kazán szolgáltatja. Előtte parkolók találhatók. Igény esetén a teljes berendezés is maradhat az üzletekben. Az épületek többféle hasznosításra alkalmasak, a falu központi részén találhatók, közel a buszmegállóhoz. Lakóházaknak is, de valamilyen termék gyártására alkalmas üzem is lehet. A faluban munkaerő is van mindenhez. Az épület tehermentes, és hamar birtokba vehető. Hívjon, ha felkeltettem érdeklődését! Egyeztessünk időpontot, és nézzük meg! Regisztrációs szám: UZ016946

További adatok

Telekterület: -
Kert mérete: -
Erkély mérete: -
Felszereltség: -
Parkolás: -
Kilátás: -
Egyéb extrák:  
-

Hirdető adatai

Hirdető neve: Otthon Centrum
Kapcsolattartó: Szegedi Szilvia
Hirdető telefonszáma: +36 70 412 5231
Honlap: -