Ház
Origó
HázOrigoval pont a központban

Bács-Kiskun megye, Baja


 

Ingatlan adatai

Irányár: 92 000 000 Ft
Típus: ház
Kategória: eladó
Alapterület: 176 m2
Fűtés: gáz (cirko)
Állapota: -
Szobák száma: 6
Építés éve: 1992
Szintek száma: -

Részletes leírás

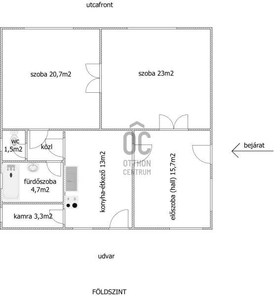
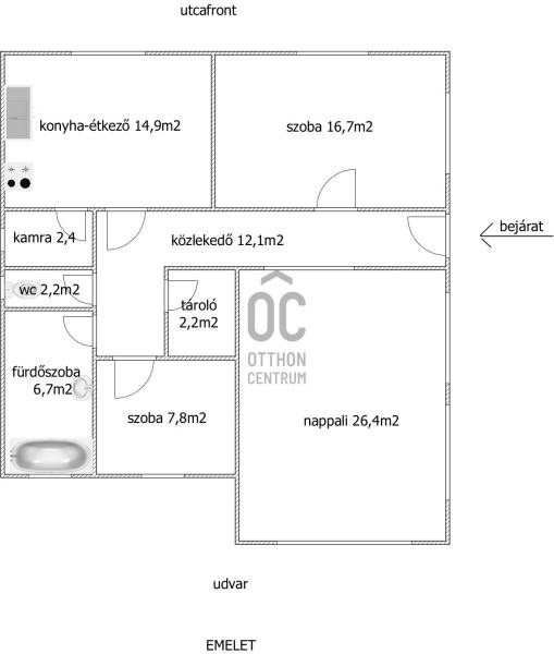
Baján a Szállásvárosban csendes, aszfaltozott utcában, 725 m2-es telken, 1992-ben épült, két önálló lakószintes családi ház, melléképületekkel, pincével és 3 állásos garázzsal eladó.Az ingatlan 84,5 m2-es földszintjén tágas előszoba (hall), két külön nyíló szoba, konyha-étkező, kamra, fürdőszoba és külön wc került kialakításra. Állapota átlagos. Fűtése gázkonvektorral megoldott. A meleg vízről villanybojler gondoskodik. A 91,36 m2-es emeleten 3 külön nyíló szoba, konyha-étkező, kamra, fürdőszoba és külön wc szolgálja a lakók kényelmét. Fűtése gázkazánnal és kandallóval megoldott. A meleg vizet itt is villanybojler adja. A lakás állapota jó. A földszinti lakás és az emeleti lakás is külön-külön rendelkezik a kedvezményes gázmennyiség igénybevételi lehetőségével. Három fázis van, és a bojlerek éjszakai áramra vannak kötve. Az udvaron lévő melléképületekben nyári konyha, tároló, műhely, pince került kialakításra. A garázs akár 3 autó részére is biztosít beállási lehetőséget ( 3m*12,5 m). A kert fúrt kútról locsolható.Az ingatlan ideális választás lehet szülő-gyerek együttköltözésére, vagy befektetési célból albérlet kiadására!Igény esetén hitel, CSOK+ és biztosítás díjmentes ügyintézésével is a rendelkezésére állunk!További kérdés, megtekintési szándék esetén keressen bizalommal!H481305

További adatok

Telekterület: 725 m2
Kert mérete: 725 m2
Erkély mérete: 12 m2
Felszereltség: -
Parkolás: -
Kilátás: -
Egyéb extrák:  
-

Hirdető adatai

Hirdető neve: Otthon Centrum
Kapcsolattartó: Szőke István
Hirdető telefonszáma: +36 70 716 9476
Honlap: -