Ház
Origó
HázOrigoval pont a központban

Pest megye, Budaörs


 

Ingatlan adatai

Irányár: 220 000 000 Ft
Típus: ház
Kategória: eladó
Alapterület: 120 m2
Fűtés: gáz (cirko)
Állapota: új
Szobák száma: 5
Építés éve: 2023
Szintek száma: -

Részletes leírás

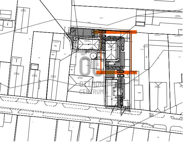
Távol és mégis közelBudapest csupán pár perc autóval, mégis valódi kisvárosi környezetben élhet itt.Szuper elhelyezkedésű új építésű, családi ház praktikus beosztással.Csendes, kis forgalmú utcában található és saját kertrésszel, terasszal autóbeállóval is rendelkezik.Minden karnyújtásnyira. Buszmegálló és iskola, óvoda, bölcsőde, orvosi rendelő, bevásárlási lehetőségek, stb.A házban:- amerikai konyhás, étkezős nappali 34,5 m2- 3 hálószoba 13,7 m2, 13,7 és 13,6 m2- 1 dolgozó/háló szoba 11,9 m2- 3 fürdő helyiség! -egyszerre is készülődhet a család!- tégla falazatú, 10 cm grafit szigeteléssel- a födém PTH gerendás , monolit vasbeton- a tetőszigetelés 20 cm- fehér színű, három rétegű nyílászárók redőnnyel, szúnyoghálóval felszereltek- a nappaliban elektromos redőny- a szobák burkolata laminált parketta, a többi helyiség járólapos.- a szobák külön nyílnak- fűtéséről kondenzációs kazán gondoskodik- klíma kiépítve- riasztórendszer előkészítve- a lakás biztonsági bejárati ajtóval felszerelt- az ingatlanhoz tartozik egy szeparált kertrész- gyepszőnyeg automata öntözőrendszerrel az ár részét képezi- parkolás a ház előtt, zárt udvarban lehetséges- az ár kulcsrakész ár, konyhabútor és lámpatestek nélkül.Megbízható, igényes, gyakorlott kivitelező. Referenciamunkái megtekinthetők!Ha barátságos, gazdaságosan fenntartható igazi Otthont keres, nem is kell tovább keresnie!Hívjon, megmutatom, és segítek, hogy az Öné lehessen!

További adatok

Telekterület: 120 m2
Kert mérete: 120 m2
Erkély mérete: -
Felszereltség: -
Parkolás: -
Kilátás: -
Egyéb extrák:  
-

Hirdető adatai

Hirdető neve: Otthon Centrum
Kapcsolattartó: Tóta Júlia Anna
Hirdető telefonszáma: +36 70 716 8736
Honlap: -