Ház
Origó
HázOrigoval pont a központban

Somogy megye, Kelevíz


 

Ingatlan adatai

Irányár: 30 990 000 Ft
Típus: ház
Kategória: eladó
Alapterület: 125 m2
Fűtés: gáz (cirko)
Állapota: -
Szobák száma: 3
Építés éve: 1980
Szintek száma: -

Részletes leírás

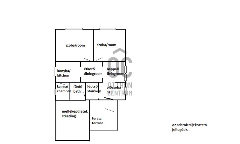
Marcalitól 6 km távolságra a 68-as jelzésű út mentén elhelyezkedő nyugodt településen, Kelevízen vált eladóvá egy 125 m2 hasznos alapterületű 2 nagy hálószobával és nappalival plusz egy (kb 30m2) műteremnek használt tetőtérrel rendelkező tégla építésű családi ház. Az egyedi hangulatú kertben rengeteg fával, kerti tóval, kúttal, terasszal, grillezővel.A Balaton 20 perc, az M7-es autópálya Balatonberényi felhajtója autóval 15 perc alatt elérhető.Az ingatlanról részletesen:-dupla széles (kb 40m) telke 2 helyrajzi számon van nyilvántartva, összesen 5041 m2 nagyságú-dupla üvegezésű, fa ablakok rovarhálóval redőnnyel-falazata ép, száraz, a tető cserép borítású-a fűtésről központi vaillant gázkazán vagy a hatalmas vízteres cserépkályha gondoskodik, mely a meleget minden helyiségben radiátorok segítségével adja le- a tetőtér a 90-es években készült el fa burkolattal, a nagy egybefüggő tér egyedi hangulatot teremt az alkotáshoz, (a tetőablakok cseréje a közelmúltban megtörtént)- a településen nincsen kiépített szennyvízhálózat, annak elvezetése egyedi udvari emésztővel megoldott-a főépület mögött több tároló, melléképület, garázs található-az udvarban még kút, gyümölcsfák és veteményesnek alkalmas terület is rendelkezésre áll, a kerti tóban aranxyhalakkal, a telek végében vágásérett erdővel (fenyőfa, nyírfa)- biogazdálkodásra, állattartásra kifejezetten alkalmasA Balaton második vonalában, Marcali mellett elhelyezkedő települést kifejezetten ajánlom gyermekes családoknak, a kisebb, nyugodt és összetartó közösségeket kedvelőknek.A helyi vezetés nagy hangsúlyt fektet a faluban élők foglalkoztatására, képzésére. A kelevízi kosárfonók országosan elismert közösség, minden nagyobb rendezvényen képviselik a települést. Több elismerés birtokosai és helyi mintaboltot is üzemeltetnek.A településen még élelmiszerbolt, dohánybolt, közösségi ház, könyvtár és hatalmas játszótér szolgálja az itt élők mindennapjait. Elkészül a Balatoni bringakörhöz kapcsolódó bicikliút is.A 6 km távolságra lévő Marcaliban bevásárlási lehetőség, közintézmények, kórház, iskolák, bankok, gyógy- és élményfürdő megtalálhatóak.A szobák és a melléképületek is praktikus elosztásúak.Ha Ön mesebeli vidéki portát keres, megtalálta.Az adatok tájékoztató jellegűek.Megtekintésért, további információkért várom hívását!Térkép

További adatok

Telekterület: 5 041 m2
Kert mérete: 5 041 m2
Erkély mérete: -
Felszereltség: -
Parkolás: -
Kilátás: -
Egyéb extrák:  
-

Hirdető adatai

Hirdető neve: Otthon Centrum
Kapcsolattartó: Halasi Anna
Hirdető telefonszáma: +36 70 469 3931
Honlap: -