Ház
Origó
HázOrigoval pont a központban

Szabolcs-Szatmár-Bereg megye, Tarpa


 

Ingatlan adatai

Irányár: 12 500 000 Ft
Típus: ház
Kategória: eladó
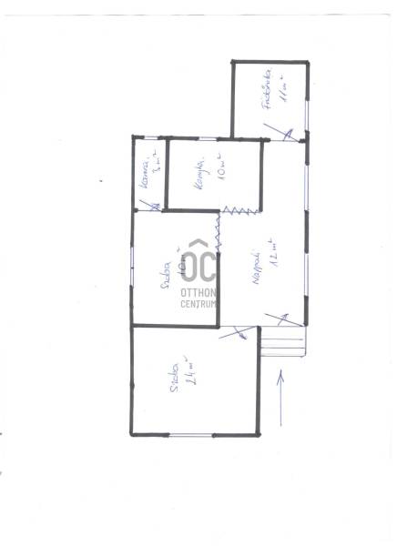
Alapterület: 70 m2
Fűtés: gáz (konvektor)
Állapota: -
Szobák száma: 2
Építés éve: 1954
Szintek száma: -

Részletes leírás

Eladásra kínálok Tarpán egy vegyesfalazatú 70 nm családi házat, az ár teljes bútorzattal értendő. Az ingatlan csendes helyen, 1415 nm rendszeresen karban tartott telken található. Az épület áll kettő szoba, nappali, konyha kamrával és egy nagyméretű fürdőszobából. A nyílászárók egy részt műanyag, másrészt fa kivitelben készültek. Burkolatok palló és járólap A fűtés gázkonvektor és cserépkályhával megoldott. Az udvar és a kert rendezett, fekvése csendes, de mégis központi helyen helyezkedik el. Amennyiben felkeltettem érdeklődését, további információért forduljon hozzám bizalommal.Vevő Ügyfeleink részére, minden szolgáltatásunk intézése díjmentes!

További adatok

Telekterület: 1 415 m2
Kert mérete: 1 415 m2
Erkély mérete: -
Felszereltség: -
Parkolás: -
Kilátás: -
Egyéb extrák:  
-

Hirdető adatai

Hirdető neve: Otthon Centrum
Kapcsolattartó: Gyöngyösi Sándor
Hirdető telefonszáma: +36 70 469 3486
Honlap: -