Ház
Origó
HázOrigoval pont a központban

Tolna megye, Paks


 

Ingatlan adatai

Irányár: 71 000 000 Ft
Típus: lakás (újépítésű)
Kategória: eladó
Alapterület: 51 m2
Fűtés: -
Állapota: új
Szobák száma: 3
Építés éve: 2024
Szintek száma: -

Részletes leírás

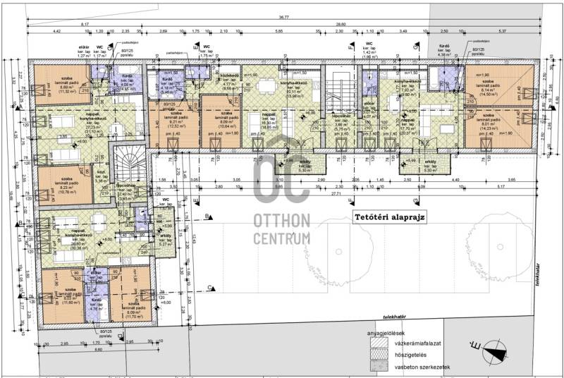
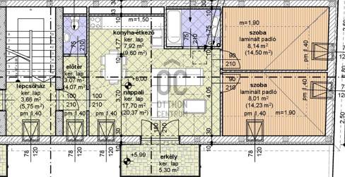
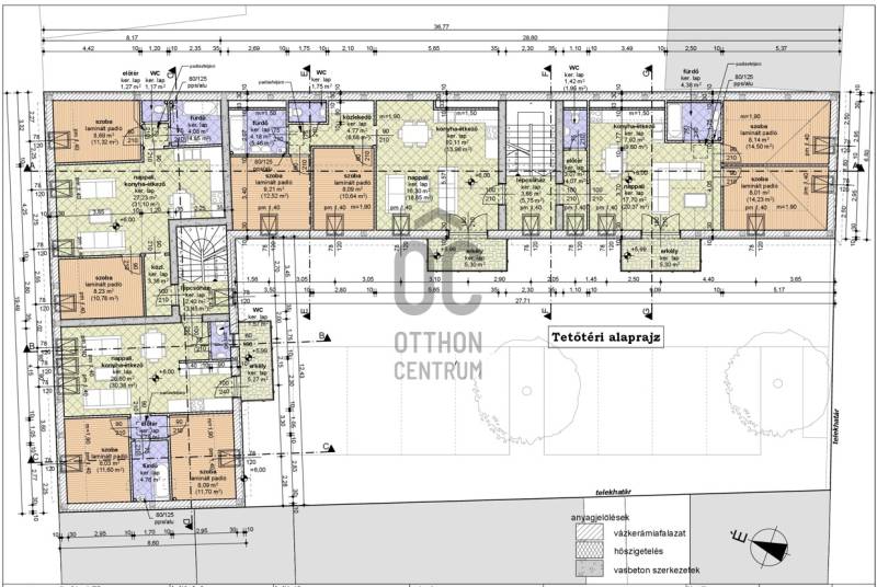
Paks belvárosában új építésű társasházi lakás eladóPaks belvárosában, 8 lakásos társasházban eladó ez a2.emeleti, tetőtéri 54 (72.4)nm-es új építésű lakás 2024-es átadássalA lakásban található egy nappali17.7(20.37)nm, étkező-konyha7.92(9.6)nm, 2 hálószoba 8,1és8.14 (14,23és14,5)nm előtér, fürdő, külön wc és erkély is.A belső kialakítás, a műszaki tartalom a burkolatokat a leendő tulajdonos igényei alapján még megbeszélés tárgyát képezhetik.A lakáshoz garázs és udvari beálló is vásárolható, .A lakások gyorsan fogynak, ezért ha érdekel , jelentkezz még ma.Projekt bemutatásaPaks belvárosában, 8 lakásos társasházban 60-75 nm-es új építésű lakások 2024-es átadással eladók.Az ingatlan korszerű anyagokból, gondos kivitelezéssel, porotherm falazattal, betoncserép fedéssel készül .A homlokzati falak a teljeskülső felületükön 10 cm-es vastagságban grafit homlokzatipolisztirol hőszigeteléssel lesznek ellátva. A fűtésről kondenzációs gázkazán gondoskodik, a külső nyílászárók 3 rétegű üvegezéssel készült gázzal töltött kivitelezésűek.A belső kialakítás, a műszaki tartalom a burkolatokat a leendő tulajdonos igényei alapján még megbeszélés tárgyát képezhetik. A lakásokhoz garázs is vásárolható, az udvaron gépkocsi beállók állnak a tulajdonosok rendelkezésére.A lakások gyorsan fogynak, ezért ha érdekel , jelentkezz még ma.Teljes körű pénzügyi megoldások ügyintézése díjmentesen.Minden élethelyzetre végzünk pénzügyi elemzést - ha vásárolni szeretnél, segítünk, hogy ezt a legjobb feltételek mellett tedd; ha eladni szeretnéd ingatlanod, nézzük meg, hátha érdemes meglévő hiteledet átváltani.Keress bizalommal, szakértők vagyunk!

További adatok

Telekterület: -
Kert mérete: -
Erkély mérete: 5 m2
Felszereltség: -
Parkolás: -
Kilátás: udvari
Egyéb extrák:  
-

Hirdető adatai

Hirdető neve: Otthon Centrum
Kapcsolattartó: Szélesné Varga Ilona
Hirdető telefonszáma: +36 70 388 5761
Honlap: -