Ház
Origó
HázOrigoval pont a központban

Tolna megye, Szekszárd


 

Ingatlan adatai

Irányár: 40 000 000 Ft
Típus: kereskedelmi/ipari ingatlan
Kategória: eladó
Alapterület: 164 m2
Fűtés: -
Állapota: -
Szobák száma: -
Építés éve: 1960
Szintek száma: -

Részletes leírás

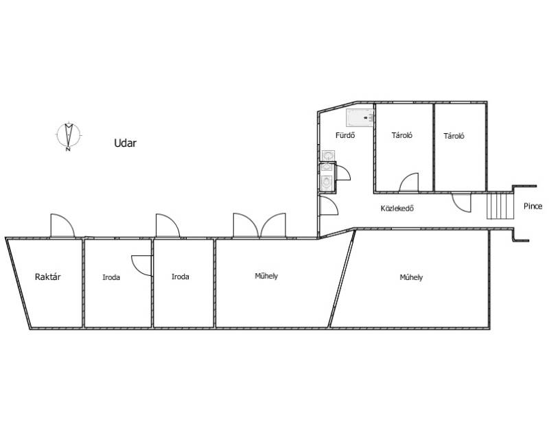
A központban, mégis csendes zsákutcában, a Csonka utcában található lakóházház eladó, egy rendkívül értékes kb. 200 éves hatalmas, igényesen kialakított kitéglázott, boltíves pincerendszerrel egyetemben.Ha vállalkozásához keres ideális helyszínt, megtalálta!Szuper lehetőség vendéglátóegység, borászat, telephely, irodaház, műhely, egészségcentrum hasznosítás céljára. Kisebb átalakítást követően lakhatásra is alkalmassá tehető.Az alábbi paraméterekkel rendelkezik:-418 m2 alapterületű telek betonúton érhető el-Kerítéssel, szomszédos épületekkel határolt-A 164 m2-es ház falazata kis mértékben vegyes, nagyobb részt tégla, építése a 60-as évekre tehető, fedése sík- és hullámpalás-Korszerűen szigetelt homlokzat 8-10 cm vastagságban-Hőszigetelt műanyag nyílászárók-A fűtésről cirkó kazán gondoskodik, míg a meleg víz ellátását bojler biztosítja-Összközműves, ipari áram bevezetésre került-Egy irodahelyiség klímával felszerelt, itt elektromos fűtés van-Két jelenleg irodai funkciót betöltő helyiség, laminált padlós-Az irodákon kívül további 5 helyiség szolgálná vállalkozását bármely funkcióval-Tusolós kialakítású a fürdő helyiség, ahol külön helyiségben található a Wc-A pincerendszer a ház mögötti részen kezdődik, a közeledőből nyíló sípon érhető el-A két, egymással párhuzamosan futó pincejárat boltívesen kitéglázott, földes aljzatú,-Egyik járat 2,90m széles és 22m hosszú, a másik 3m széles és 15 méter hosszú-A két járat közötti átjárást 1 m széles és 5 hosszú közlekedő rész biztosítja-A pincében a funkciónak megfelelő világítás került kialakításra-A pince biztosította hőmérséklet és páratartalom egész évben kiváló otthont biztosíthat borainak-Megfelelő tisztaságú és semleges szagú-Fontos megemlíteni, hogy ma már nem lehetséges a belvárosban új pince kialakítása, ezért kár lenne ezt a már létrehozott értéket veszni hagyni. A pince vége téglázottan lezárt, nem kizárható, hogy a pincejárat a lezárt rész után folytatódik.-Az ingatlan Áfa-san kerül értékesítésre: magánszemély + 27% Áfa, gazdálkodó szervezet esetében a fordított Áfa szabályai szerint.-A HIRDETÉSI ÁR NETTÓ ÁR!Az ingatlan jelenleg bérbe adott, 2025.08.20.-ig határozott idejű szerződéssel. Ha kiadná, akkor addig biztos a hasznosítás.Kedves Ügyfelünk, az ingatlanról videót is készítettünk. Ha ezt a hirdetést az Otthon Centrum weboldalán nézi, akkor a videóra a képek után tud kattintani. Ha egy másik weboldalon találta ezt a hirdetést, kérem nyissa meg az Otthon Centrum weboldalát, kattintson a „Regisztrációs szám keresése” menüpontra, és írja be ezt a regisztrációs számot a keresőbe: UZ016111 Itt meg tudja tekinteni az ingatlanról készült videót. Vagy írjon nekem, és szívesen elküldöm a videót.Ha felkeltettem az érdeklődését, kérem, keressen a hirdetésben található elérhetőségen, nézzük meg együtt vállalkozása helyszínét! Várom a hívását!Az ingatlanról hamarosan videó felvételt is készítünk!Eladó Belváros üzleti ingatlan lakóház pince OC UZ016111

További adatok

Telekterület: -
Kert mérete: -
Erkély mérete: -
Felszereltség: -
Parkolás: -
Kilátás: -
Egyéb extrák:  
-

Hirdető adatai

Hirdető neve: Otthon Centrum
Kapcsolattartó: Deliné Nagy Edit
Hirdető telefonszáma: +36 70 461 9696
Honlap: -