Ház
Origó
HázOrigoval pont a központban

Hajdú-Bihar megye, Debrecen


 

Ingatlan adatai

Irányár: 119 990 000 Ft
Típus: ház
Kategória: eladó
Alapterület: 117 m2
Fűtés: gáz (cirko)
Állapota: új
Szobák száma: 4
Építés éve: 2022
Szintek száma: -

Részletes leírás

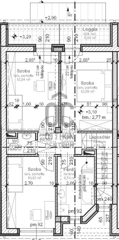
Debrecen kedvelt részén, a Hatvan utcai kert csendes, új építésű övezetében, magas műszaki tartalommal rendelkező, jó elrendezésű, kétszintes, sorházi lakás eladó. Az ingatlan, nappali + 3szobás, dupla komfortú, a földszinten garázzsal, terasszal, és önálló kertkapcsolattal.Kedvező hitelkonstrukció és vásárlási feltételek.Az ingatlan jellemzői:-modern építési technológia-saját kertkapcsolat-nagy terasz-hőszigetelt üvegezésű, argon gázzal töltött ablakok-cirkó-fűtés, kondenzációs kazánnal-minőségi burkolatok és szaniterek-kitűnő infrastruktúra-csendes, értékálló környezet-stb.

További adatok

Telekterület: 196 m2
Kert mérete: 196 m2
Erkély mérete: 17 m2
Felszereltség: -
Parkolás: -
Kilátás: -
Egyéb extrák:  
-

Hirdető adatai

Hirdető neve: Otthon Centrum
Kapcsolattartó: Lovász Sándor
Hirdető telefonszáma: +36 70 469 3276
Honlap: -