Ház
Origó
HázOrigoval pont a központban

Hajdú-Bihar megye, Téglás


 

Ingatlan adatai

Irányár: 180 000 000 Ft
Típus: kereskedelmi/ipari ingatlan
Kategória: eladó
Alapterület: 1 194 m2
Fűtés: -
Állapota: -
Szobák száma: -
Építés éve: 2015
Szintek száma: -

Részletes leírás

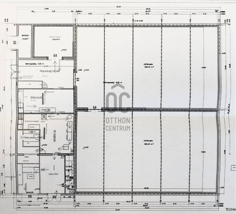
Debrecentől 20 km-re Téglás település gazdasági-ipari övezetében található telephely eladó. Az épület 2015-ben épült, Bruttó alapterülete 1194 m2, telekterület összesen 5600 m2.Közművek: a telephelyen víz, csatorna és 3 fázisú ipari áram van bevezetve.Jellemzői:- 12 kW-os napelem rendszer- Szilárd burkolatú belső út- Acél vázszerkezetű 20 cm vastag szendvicspanelből készült.- 2 db 390 m2 6,55 m belmagasságú és 1 db 42 m2 hűtőtér/raktár- az előkészítő/manipuláló tér tégla építésű 240 m2 4,55 m belmagasságú- személyzeti öltöző, zuhanyzó- irodarész- elkülönített zárt hulladéktároló- kerítéssel körbekerített- teherforgalom bonyolítására alkalmasAz ingatlan tehermentes.Eladási ára: 180.000.000 FtBővebb tájékoztatással, megtekintéssel kapcsolatban keressen bizalommal. Hétvégén is!

További adatok

Telekterület: -
Kert mérete: -
Erkély mérete: -
Felszereltség: -
Parkolás: -
Kilátás: -
Egyéb extrák:  
-

Hirdető adatai

Hirdető neve: Otthon Centrum
Kapcsolattartó: Szaszala Zsolt
Hirdető telefonszáma: +36 70 469 3681
Honlap: -