Ház
Origó
HázOrigoval pont a központban

Hajdú-Bihar megye, Debrecen


 

Ingatlan adatai

Irányár: 135 000 000 Ft
Típus: ház
Kategória: eladó
Alapterület: 141 m2
Fűtés: gáz (cirko)
Állapota: új
Szobák száma: 5
Építés éve: 2024
Szintek száma: -

Részletes leírás

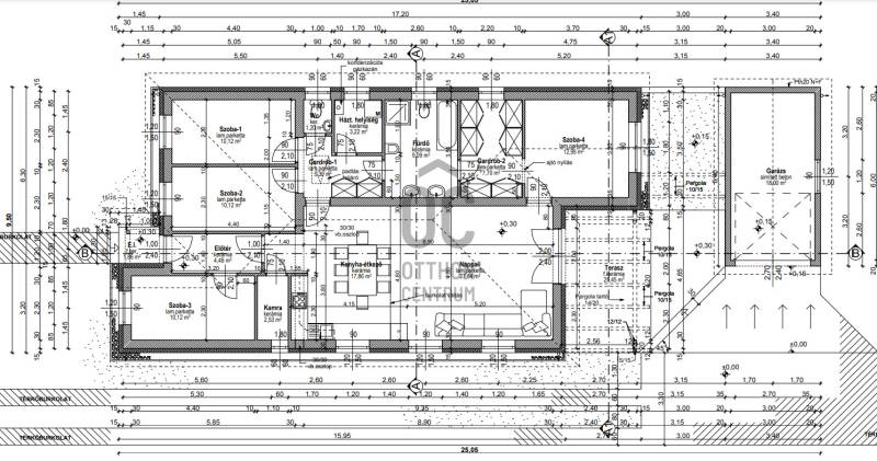
Az ingatlan nagyon jó elrendezésű, NAPPALI + 4 SZOBÁS, tehát : 4 db külön nyíló szobája van + a konyha - étkező - nappali, tágas fürdőszoba, 2 gardrob, garázs, + egy 25 m2 - es terasz.Hasznos alapterülete : 140,53 m ( beleszámítva a 18 m2 - es garázst is ) + 25,45 m2 - es terasz tartozik az ingatlanhoz.Egy telken 2 db családi ház épül, elválasztva egymástól, nem érnek össze, teljesen különálló !!! Albetétesitve lesz, illetve nem egymáson átjárós, hanem az utcáról nyílik , tehát teljesen független , saját telekhányaddal !!A mai kornak, elvárásoknak megfelelő technológiával készül, Porotherm NF 30 - as téglafal, 15 cm szigeteléssel, könnyűszerkezetes födémmel : 15 + 15 cm szigeteléssel, 3 rtg műanyag nyílászárókkal, garázskapu szigetelt, szekcionált, 2 db távirányítóval.Fűtése : gázcirkó, kondenzációs kazánnal, terv szerint padlófűtéssel, nappaliban és a szobában klímával szerelve.A belső kialakításba már nem tudunk beleszólni, mivel az ingatlan teljesen készen van, konyhaszekrénnyel, klímákkal, gardrobszekrényekkel, előszoba fali szekrénnyel felszerelve, ezek a vételár részét képezik.Várható átadása : 2024. év vége, és kész is vannak az ingatlanok, AZONNAL KÖLTÖZHETŐ !!!Ha felkeltettem az érdeklődését, kérem hívjon bizalommal !!!

További adatok

Telekterület: 400 m2
Kert mérete: 400 m2
Erkély mérete: 25 m2
Felszereltség: -
Parkolás: -
Kilátás: -
Egyéb extrák:  
-

Hirdető adatai

Hirdető neve: Otthon Centrum
Kapcsolattartó: Tóth Ferenc
Hirdető telefonszáma: +36 70 716 9076
Honlap: -