Ház
Origó
HázOrigoval pont a központban

Hajdú-Bihar megye, Hajdúszoboszló


 

Ingatlan adatai

Irányár: 160 000 000 Ft
Típus: ház
Kategória: eladó
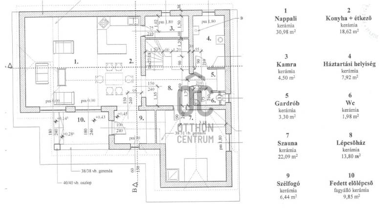
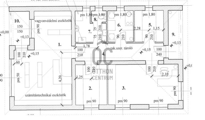
Alapterület: 285 m2
Fűtés: gáz (cirko)
Állapota: -
Szobák száma: 7
Építés éve: 2011
Szintek száma: -

Részletes leírás

Hajdúszoboszlón eladó két épületrészből álló lakóingatlan. Az utcafronti épület üzleti, irodai funkciót egyaránt betölthet,míg a mögötte elhelyezkedő önálló családi ház minden kényelmi funkciójával áll az új tulajdonos rendelkezésére.További részletekért hívjon bizalommal!

További adatok

Telekterület: 875 m2
Kert mérete: 875 m2
Erkély mérete: -
Felszereltség: -
Parkolás: -
Kilátás: -
Egyéb extrák:  
-

Hirdető adatai

Hirdető neve: Otthon Centrum
Kapcsolattartó: Gratzka Győző
Hirdető telefonszáma: +36 70 388 5461
Honlap: -