Ház
Origó
HázOrigoval pont a központban

Somogy megye, Siófok


 

Ingatlan adatai

Irányár: 210 000 Ft/hó
Típus: kereskedelmi/ipari ingatlan
Kategória: kiadó
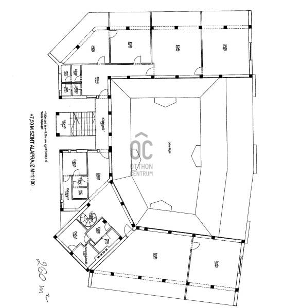
Alapterület: 140 m2
Fűtés: -
Állapota: -
Szobák száma: -
Építés éve: -
Szintek száma: -

Részletes leírás

A vásárcsarnok közvetlen közelében nyissa meg új irodáját, üzletét!Az üzlethelyiség jellemzői:Hosszú távra kiadó minimum 1-év!2. emeleti 140 nm épületrész, mely korábban irodaként működött, beosztása ennek megfelelő, de tetszőlegesen átalakítható.Irodahelyiségek és két vizesblokk, teakonyha tartozik hozzá. Innen belső lépcső vezet egy toronyszobába.- Gázcirkó fűtéssel rendelkezik (helyenként padlófűtéssel)- Egyedi vízmérőkkel felszerelt- Közös költség 200.-Ft/nm/hó- 3 havi kaució + aktúalis hó- Bérleti díj: 210.000.-Ft/hó +Áfa + rezsi- Központi elhelyezkedés Tágas, világos helyiségek, egyedi félköríves forma. Ideális üzlethelyiség, bemutatóterem, műterem, iroda létrehozására. Az utca túloldalán a városi parkolóban egész évben díjmentes parkolási lehetőség.További részletekért állok rendelkezésre a hét bármely napján.

További adatok

Telekterület: -
Kert mérete: -
Erkély mérete: -
Felszereltség: -
Parkolás: -
Kilátás: -
Egyéb extrák:  
-

Hirdető adatai

Hirdető neve: Otthon Centrum
Kapcsolattartó: Földi Beatrix Ilona
Hirdető telefonszáma: +36 70 388 5411
Honlap: -