Ház
Origó
HázOrigoval pont a központban

Budapest, V.kerület


 

Ingatlan adatai

Irányár: 2 680 313 Ft/hó
Típus: iroda
Kategória: kiadó
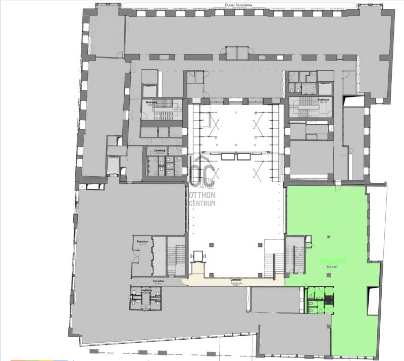
Alapterület: 286 m2
Fűtés: -
Állapota: -
Szobák száma: -
Építés éve: -
Szintek száma: -

Részletes leírás

5.ker. Banknegyedben lévő irodaház 1.em.-i területen 286m2 kiadóKÖRNYEZET:A főváros üzleti, kormányzati, turisztikai és kulturális negyedében álló, belvárosi irodaház az ESG szellemében kiemelkedő digitális kapcsolatokat, okos megoldásokat, akadálymentességet és közösségi funkciókat is biztosít.A tervezett belsőépítészeti és műszaki megoldások, a közös területek és az irodahelyiségek megújulása a fenntarthatóság jegyében zajlik, a környezettudatos minősítések megszerzése mellett pedig az épület a nettó zéró kibocsátást is megcélozza.Az átalakítással és újra pozicionálással a tulajdonos a legújabb bérlői elvárásoknak megfelelő épületet hoz létre, amely innovatív üzemeltetést, kényelmi \'concierge\' szolgáltatásokat és flexibilisen alakítható irodaterületeket kínál. Az irodaház a klasszikus luxust a modern technikával ötvözve nyújt professzionális munkakörnyezetet és kimagasló ügyfélélményt 12.500m2-en.ÉPÜLET MŰSZAKI JELLEMZŐI:Mennyezeti hűtés-fűtésNyitható ablakokÉrintésmentes beléptető rendszer (QR kód és NFC)Szünetmentes áramszolgáltatásModuláris álpadló és padlószőnyegEnergiahatékony , jelenlét érzékelős LED-világítás7 személylift, 1 teherlift50m3/fő/óra frisslevegő befúvásIRODAHÁZ SZOLGÁLTATÁSAI:Bérelhető tárgyalókKonferenciateremÉtterem, kávézóHelyszíni üzemeltetésCocierge szolgáltatásKerékpár tárolókÖltözők, zuhanyzókAutómosóMINŐSÍTÉSEKWELL Platinum és GoldBREEAM ExcellentWiredScoreAccess4You

További adatok

Telekterület: -
Kert mérete: -
Erkély mérete: -
Felszereltség: -
Parkolás: -
Kilátás: -
Egyéb extrák:  
-

Hirdető adatai

Hirdető neve: Otthon Centrum
Kapcsolattartó: Lehoczki Mária
Hirdető telefonszáma: +36 70 716 8256
Honlap: -