Ház
Origó
HázOrigoval pont a központban

Budapest, XIII.kerület


 

Ingatlan adatai

Irányár: 1 551 530 Ft/hó
Típus: iroda
Kategória: kiadó
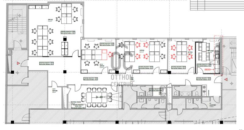
Alapterület: 267 m2
Fűtés: -
Állapota: -
Szobák száma: -
Építés éve: -
Szintek száma: -

Részletes leírás

KÖRNYEZET:Az Árpád híd pesti lábánál a Raiffeisen bank új központja mögött egy csendes utcában helyezkedik el ez a különálló épület. Az épület könnyen megközelíthető a Hungária körútról, az Árpád hídról, illetve a Váci útról. Tömegközlekedése kiváló: autóbusszal, villamossal, metróval is könnyen elérhető. Volánbusz pályaudvar az épület szomszédságában található. Az épület környezete folyamatosan megújul és széleskörű szolgáltatásokkal bír, mint gyógyszertár, posta, dohánybolt, étterem, kávézók, szendvicsbárok.Az irodaház a klasszikus luxust a modern technikával ötvözve nyújt professzionális munkakörnyezetet és kimagasló ügyfél élményt 5.500m2-en.ÉPÜLET MŰSZAKI JELLEMZŐI:Mennyezeti hűtés-fűtésNyitható ablakokÉrintésmentes beléptető rendszer (QR kód és NFC)Szünetmentes áramszolgáltatásModuláris álpadló és padlószőnyegEnergiahatékony , jelenlét érzékelős LED-világítás3 személylift, 1 teherlift50m3/fő/óra frisslevegő befúvásIRODAHÁZ SZOLGÁLTATÁSAI:KonferenciateremÉtteremKávézó terasszalDíjmentes parkolóövezetVendég parkolóZuhanyzási lehetőségConcierge szolgáltatásKerékpár tárolókSzékhely szolgáltatásFitness teremAutómosó

További adatok

Telekterület: -
Kert mérete: -
Erkély mérete: -
Felszereltség: -
Parkolás: -
Kilátás: -
Egyéb extrák:  
-

Hirdető adatai

Hirdető neve: Otthon Centrum
Kapcsolattartó: Lehoczki Mária
Hirdető telefonszáma: +36 70 716 8256
Honlap: -