Ház
Origó
HázOrigoval pont a központban

Budapest, II.kerület


 

Ingatlan adatai

Irányár: 1 750 000 Ft/hó
Típus: ház
Kategória: kiadó
Alapterület: 540 m2
Fűtés: gáz (cirko)
Állapota: -
Szobák száma: 8
Építés éve: 2000
Szintek száma: -

Részletes leírás

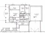
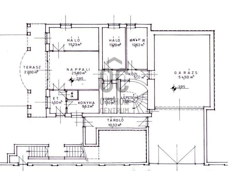
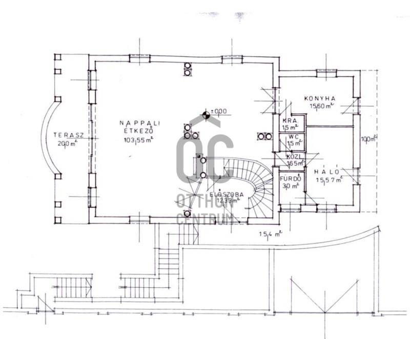
luxus a város felettKiadásra kínálunk a Szeréna úton egy gyönyörű panorámás 3 szintes luxus igényeket kielégítő családi házat.Alkalmas egy nagyobb családnak lakhatásra, de akár irodának, vagy cégközpontnak, oktatási célokra, vagy rendelőknek is.A földszinten 3 állásos garázs, szauna, kiszolgáló helyiségek és egy világos tágas nappali, 3 háló szoba, fürdő és konyha található. Ez a szint is nagyon világos, panorámás és közvetlen kijárata van az alsó teraszra. és a kertbe.A középső szinten egy óriási étkezőt és nappalit valamint 1 háló szobát és fürdőt alakítottak ki. A napfényes nappaliból jutunk ki az óriási teraszra, ahonnan a lábunk előtt érezhetjük az egész várost.A felső szinten a halból nyílik 2 hálószoba és 2 fürdő. A teraszról itt is élvezhetjük a csodás panorámát. A halból egy lépcsőn juthatunk fel a tetőteraszra. A ház körüli kert szépen gondozott, elektromos kapun át juthatunk az udvarba. A kertből a ház körüljárható, a középső terasz szintjén is.A kertben további 4 gépkocsi számára biztosított a beállás.Érdemes megtekinteni! Várom jelentkezését.Díjmentes, bankfüggetlen hiteltanácsadással támogatjuk vevő ügyfeleinket a számukra legelőnyösebb finanszírozási döntések meghozatalában. Opcionálisan igénybe vehető kiegészítő szolgáltatásainkkal – mint ügyvédi közreműködés, energetikai tanúsítvány vagy villamos biztonsági felülvizsgálat – teljes körű szakmai támogatást nyújtunk az adásvétel folyamatának minden egyes lépésénél.

További adatok

Telekterület: 1 000 m2
Kert mérete: 1 000 m2
Erkély mérete: 102 m2
Felszereltség: -
Parkolás: -
Kilátás: -
Egyéb extrák:  
-

Hirdető adatai

Hirdető neve: Otthon Centrum
Kapcsolattartó: Lehoczki Mária
Hirdető telefonszáma: +36 70 716 8256
Honlap: -