Ház
Origó
HázOrigoval pont a központban

Budapest, II.kerület


 

Ingatlan adatai

Irányár: 935 000 000 Ft
Típus: ház
Kategória: eladó
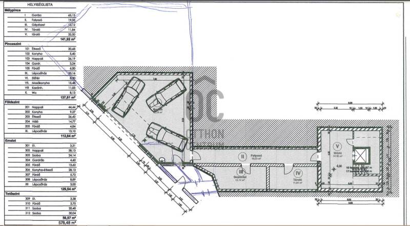
Alapterület: 578 m2
Fűtés: gáz (cirko)
Állapota: -
Szobák száma: 8
Építés éve: 2004
Szintek száma: -

Részletes leírás

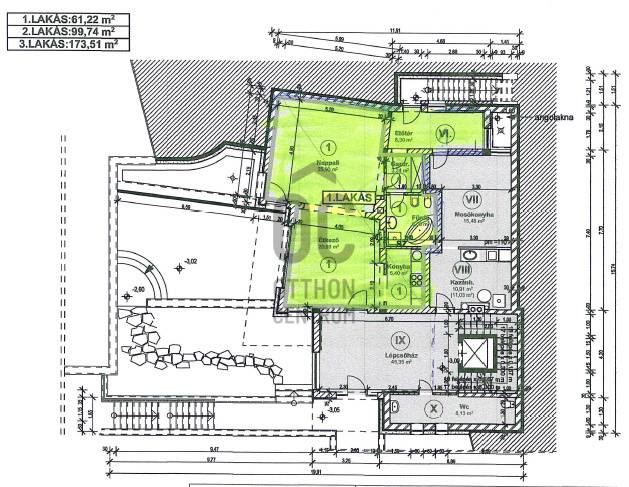
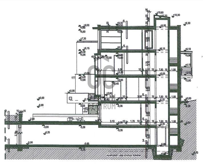
Megvételre kínálok a 2. kerület Pálvölgyben DUNAI PANORÁMÁVAL egy 2004 -ben épült, nettó 578 nm, 8 szobás családi házat, mely összesen 5 szinten helyezkedik el! A szintek közötti átjárást jelentősen megkönnyíti, hogy a házban egy 4 személyes lift is üzemel! Az ingatlan 3 helyrajzi számon található és akár 3 lakássá is alakítható. Ekkor a szintek közötti mozgás a lift programozásával, egy kulcskártyával megoldható lehet!Az ingatlan 745 nm gyönyörűen parkosított és gondozott telken fekszikk közvetlenül a Pilisi Parkerdő mellett.A ház 4 terasszal rendelkezik, melyek összterülete 130 nm. Három nagy teraszról valamint a tágas nappali étkezőjéből is gyönyörködhetünk az elvehetetlen panorámában! Parkolni a pinceszinten lévő garázsban lehet, mely jelenleg 3 autó befogadását teszi lehetővé, de ez akár bővíthető még 2 gépjármű befogadására.A környék rendkivül biztonságos, a 2. kerület egy presztizs környékén, erdő szélén, intim környezetben helyezkedik el. Ház jellemzői:- nettó 578 nm, 5 szint, 8 szoba, - 745 nm INTIM TELEK, - a házban LIFT üzemel, - kültéri MEDENCE ( 10m x 3m) sóbontó készülékkel, - a ház 3 lakássá alakítható (3 helyrajzi számon), - több generáció együttélésére is alkalmas,- két utcai bejárat,- DUNAI PANORÁMA,- összesen 130 nm terasz (60, 30, 25, 15 nm), - 3 szinten panorámás teraszok, - 285 cm belmagasság,- gázkazán (kedvező rezsivel),- klíma minden szinten, minden szobában,- fa tüzelésű kandalló a nappaliban,- INFRASZAUNA (2 személyes),- megújult homlokzat (2022)- kültéri gránit burkolatok (2022-ben készült el),- DK-i tájolás, - hatalmas fa nyílászárók, ragyogóan napfényes helyiségek, - riasztó, - 3 állásos garázs, mely még bővíthető 2 autó beállási lehetőséggel, - 2 felszíni beállóSzintenként:Garázs, azaz pinceszint:- 65 nm garázs, elektromos kapuval, tároló helyiségek, gépészet, Földszint (akár 1.lakrész)- akár egy önálló lakrész is lehet étkezős nappalival, hálószobával valamint konyhával és fürdőszobával. A nappaliból nyílik egy 15 nm terasz és a kert egy nagyobb része. 1. szint (akár 2. lakrész)Itt helyezkedik el egy hatalmas étkezős nappalit, melynek étkezőrészét hatalmas üveg nyílászárók ölelik körbe, így étkezés közben az egész család gyönyörködhet az elvehetetlen panorámában. A nappaliból két terasz is nyílik az egyik a kültéri medencés kertrész és a Pilis erdő tárul elénk, a másik 30 nm es teraszról a panorámát csodálhatjuk újra meg! Találunk itt még egy szobát, fürdőszobát és egy nagy konyhát is.2. szint ( a 3. szinttel akár 3. lakrész lehet)Ezen az emeleten jelenleg a hálószobák helyezkednek el, köztük a szülői hálóval, melynek különlegessége a az infraszauna, gardrób szoba és a hatalmas szülői fürdőszoba pihenősarokkal. Itt a teljes komfortérzetet növelve egy plusz fürdőszoba is beépítésre került, így ezen a szinten 2 fürdő is található. 3. szint (a 2. szinttel együtt akár 3. lakrész kialakítható)A 3. szinten 2 hálószoba , egy fürdőszoba és egy kis teakonyhát alakítottak ki! Az egyik hálószoba ablakai gyönyörű panorámával büszkélkedhetnek, míg a másik szobából közvetlen kijárás biztosított a ház legnagyobb 60 nm-es tetőteraszára. A panoráma természetesen itt is lenyűgöző, sőt!! Környék: A ház a Pilisi Parkerdő közvetelen szomszédságában fekszik, annyira, hogy hátsó kertrészéből kilépve közvetlen az erdőben találjuk magunk! Igazán intim, egyedülálló környezet! Az utcában szebbnél szebb és impozánsabb házak sorakoznak! A környék kimondottan presztizs milliő.A közelben buszmegálló található.Csend és nyugalom egy karnyújtásnyira a pezsgő várostól. Ide igazán hazatér az ember!Jöjjön és helyezze magát kényelembe új otthonában!Várom megtisztelő hívását a hét minden napján!

További adatok

Telekterület: 745 m2
Kert mérete: 745 m2
Erkély mérete: 130 m2
Felszereltség: -
Parkolás: -
Kilátás: -
Egyéb extrák:  
-

Hirdető adatai

Hirdető neve: Otthon Centrum
Kapcsolattartó: Király Szilvia
Hirdető telefonszáma: +36 70 716 9561
Honlap: -