Ház
Origó
HázOrigoval pont a központban

Pest megye, Nagykovácsi


 

Ingatlan adatai

Irányár: 458 000 000 Ft
Típus: ház
Kategória: eladó
Alapterület: 243 m2
Fűtés: -
Állapota: -
Szobák száma: 6
Építés éve: 2021
Szintek száma: -

Részletes leírás

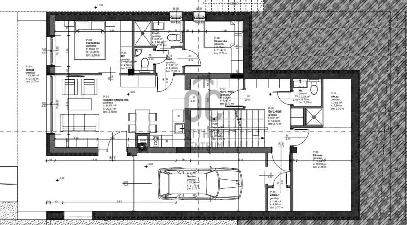
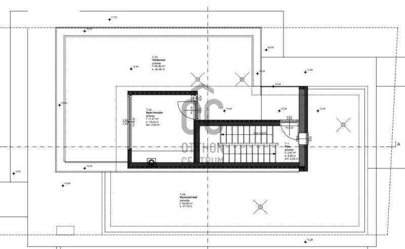
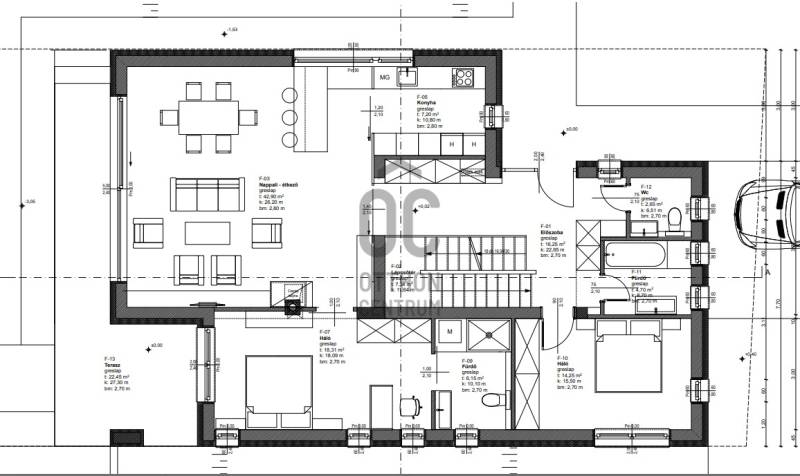
ELVEHETETLEN PANORÁMÁS, ENERGIA HATÉKONY MINIMÁL OTTHON Nagykovácsi közkedvelt részén, a Cseresznye utcában két külön utcából megközelíthető, 2 lakrészes, így akár két generációnak is zavartalanul használható modern, nettó 243 nm + cc.80 m2 teraszos, 2021 telén befejezett magánház keresi igényes, gondos új gazdáját. KÖRNYEZET - zöld, csendes környezet - szmoghatár feletti terület - rendezett útviszonyok - Amerikai iskola 10 percre ÉPÜLET - saját részre készült - igényes anyagfelhasználás és kivitelezés - parkosított, automata öntözős, rendezett kert, - 2 utcára nyíló 780 m2 telek- két utcáról megközelíthető belső 3 szintes, - két külön élettérrel: - Cseresznye utcai főbejárattal (120 m2) tágas előszoba, 2 háló, panorámás nagy nappali-konyha -étkező. 1 tusolós mosókonyhás fürdő, külön WC, 1 modern akadálymentes kádas fürdőszoba WC-vel. - Körte utcai bejárattal (111 m2 + garázs) nappali-konyha-étkező, 2 háló, 1 tusolós fürdő WC-vel, 1 vendég WC, kombi szauna tusolóval, külön WC-vel, kondi szobával, kamra.- A belső impozáns, üvegkorlátos, 3 szintet összekötő lépcsőn lehet feljutni a teljes körpanorámás tetőteraszra, ahol egy 12 m2-es konyha-étkező lett kialakítva - Az ingatlan területén 6 autónak van telken belül beállási lehetősége (a Körte utca felől 1 autónak a garázsban + 1 autónak a garázs előtt fedett beállóban + 1 autónak a napelem alatti fedett helyen + a Cseresznye utca felől 3 autónak telken belül.) MŰSZAKI TARTALOM - Hőszivattyús padló fűtés-mennyezet hűtés 11,2 kW teljesítményű napelem rendszerrel kiegészítve - Műanyag nyílászárók - Elektromos redőnyök, szúnyoghálók- Mindhárom szinten német gépesített konyhabútor - Rengeteg beépített szekrény - Az alsó szinten tűzteres, fával és akár elektromossággal is működtethető cserépkályha, ami a középső szintet is fűti -Kerti automata öntözőrendszer földalatti víztárolóval - Kiépített kamera és riasztórendszer - Kombi szauna Kifejezetten ajánlom olyan csendet, nyugalmat kereső családoknak, akik a minimális rezsiköltség és a környezettudatosság mellett az extra kényelmet is keresik.Díjmentes, bankfüggetlen hiteltanácsadással támogatjuk vevő ügyfeleinket a számukra legelőnyösebb finanszírozási döntések meghozatalában. Opcionálisan igénybe vehető kiegészítő szolgáltatásainkkal – mint ügyvédi közreműködés, energetikai tanúsítvány vagy villamos biztonsági felülvizsgálat – teljes körű szakmai támogatást nyújtunk az adásvétel folyamatának minden egyes lépésénél.

További adatok

Telekterület: 780 m2
Kert mérete: 780 m2
Erkély mérete: 70 m2
Felszereltség: -
Parkolás: -
Kilátás: -
Egyéb extrák:  
-

Hirdető adatai

Hirdető neve: Otthon Centrum
Kapcsolattartó: Simon Szilvia
Hirdető telefonszáma: +36 70 461 9411
Honlap: -