Ház
Origó
HázOrigoval pont a központban

Budapest, III.kerület


 

Ingatlan adatai

Irányár: 77 966 Ft/hó
Típus: iroda
Kategória: kiadó
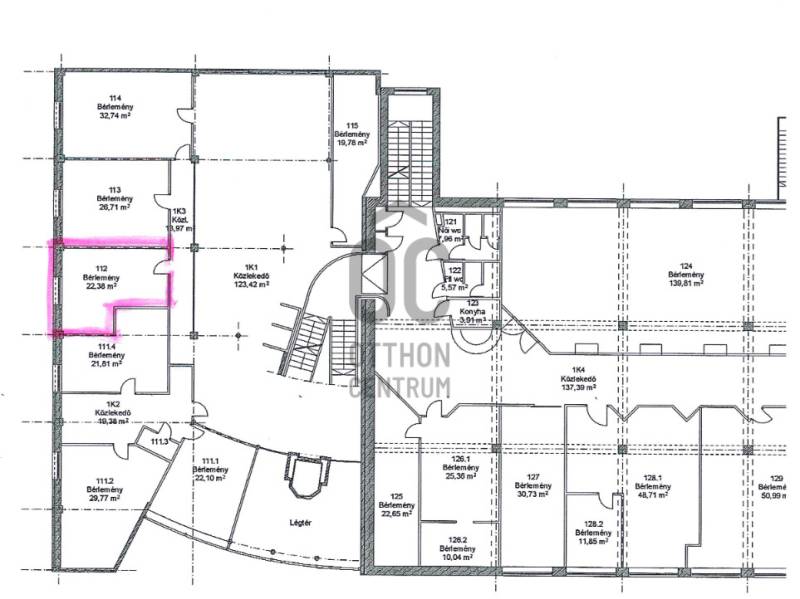
Alapterület: 27 m2
Fűtés: -
Állapota: -
Szobák száma: -
Építés éve: -
Szintek száma: -

Részletes leírás

Bécsi úti kiadó helyiségForgalmas hely remek lehetőségForgalmas hely remek lehetőségBécsi úti Üzlet/irodaházban 10,5- 440 nm-es, 2,9 - 4,5m belmagasságú helyiségek kiadók!Felhasználhatóak irodának, raktárnak, sport, egészségügyi és oktatási létesítményként is.Igény szerint alakíthatóak.Az épületben lift és teherlift is működik.Az udvaron parkolási lehetőség biztosított.A bérleti díjon felül fizetendő rezsiköltség: 7,5 Euró/hó/m2 + 4,5 Euró/nm/hó + ÁfaÉpítményadó 150Ft/hó/nm+ Áfa15.000 Ft/hó+ Áfa villany átalány

További adatok

Telekterület: -
Kert mérete: -
Erkély mérete: -
Felszereltség: -
Parkolás: -
Kilátás: -
Egyéb extrák:  
-

Hirdető adatai

Hirdető neve: Otthon Centrum
Kapcsolattartó: Lehoczki Mária
Hirdető telefonszáma: +36 70 716 8256
Honlap: -