Ház
Origó
HázOrigoval pont a központban

Budapest, III.kerület


 

Ingatlan adatai

Irányár: 4 343 486 Ft/hó
Típus: iroda
Kategória: kiadó
Alapterület: 1 206 m2
Fűtés: -
Állapota: -
Szobák száma: -
Építés éve: 2019
Szintek száma: -

Részletes leírás

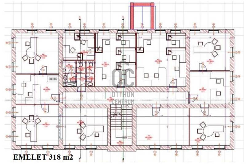
III. KER. II. KERÜLETHEZ KÖZELI RÉSZÉN, JÓ KÖZLEKEDÉSI ADOTTSÁGOKKAL, 1206 m2 ÚJJÁÉPÍTETT IRODAHÁZIII. KER. II. KERÜLETHEZ KÖZELI -JÓ KÖZLEKEDÉSI ADOTTSÁGOKKAL RENDELKEZŐ- RÉSZÉN kínálunk bérbeadásra, egy 2018-19-ben TELJESKÖRŰEN ÚJJÁÉPÍTETT 1206 m2-es (föld feletti méret 972 m2) 4 szintes (alagsor, fszt., emeltet, tetőtér) NAGY BELMAGASSÁGGAL RENDELKEZŐ, LIFT NÉLKÜLI, BENAPOZOTT, DNY-i TÁJOLÁSÚ ÖNÁLLÓ IRODAHÁZAT. Igény szerint LEHETŐSÉG VAN, közvetlenül az épület melletti MÉLYGARÁZSBAN GARÁZSHELYEK BÉRLÉSÉRE 88 Eur+áfa/db áron (jelenleg kb. 20 szabad garázshely van, de ez bármikor változhat). Az épületben KAMERÁS mozgásérzékelős riasztó, tűzjelző, és légtechnikai elszívó rendszer lett kialakítva.A pinceszinten a gépészeti, és tárolóhelyeken kívül, egy BOROZÓ is HELYET KAPOTT, ami többek között TÁRGYALÁSOK, CÉGES TALÁLKOZÓK RENDEZÉSÉRE is ALKALMAS.Bérleti díj 11.142 EUR+áfa/hó, (8 Eur/hó/m2) Üzemeltetési költség: 1,5 Eur+áfa/m2/hó Fűtés, hűtés: Kondenzációs központi gázkazán, FAN-COIL HŰTÉS FŰTÉSSEL.Telefon, hírközlés: több telefon fővonal + ISDN, kiépített gyengeáramú hálózat és szünetmentes áramellátó hálózat.Közlekedés: 1, 17, 19, 41-es villamosok, valamint a 137, 160, 218, 237, 260, illetve a 260A jelű buszjáratok is néhány perc sétával elérhetőek.TISZTELT ELADÓ!Eladó ingatlana van? Forduljon hozzám bizalommal!

További adatok

Telekterület: -
Kert mérete: -
Erkély mérete: -
Felszereltség: -
Parkolás: -
Kilátás: -
Egyéb extrák:  
-

Hirdető adatai

Hirdető neve: Otthon Centrum
Kapcsolattartó: Csopaki Balázs
Hirdető telefonszáma: +36 70 716 8476
Honlap: -