Ház
Origó
HázOrigoval pont a központban

Budapest, V.kerület


 

Ingatlan adatai

Irányár: 225 000 000 Ft
Típus: lakás (újépítésű)
Kategória: eladó
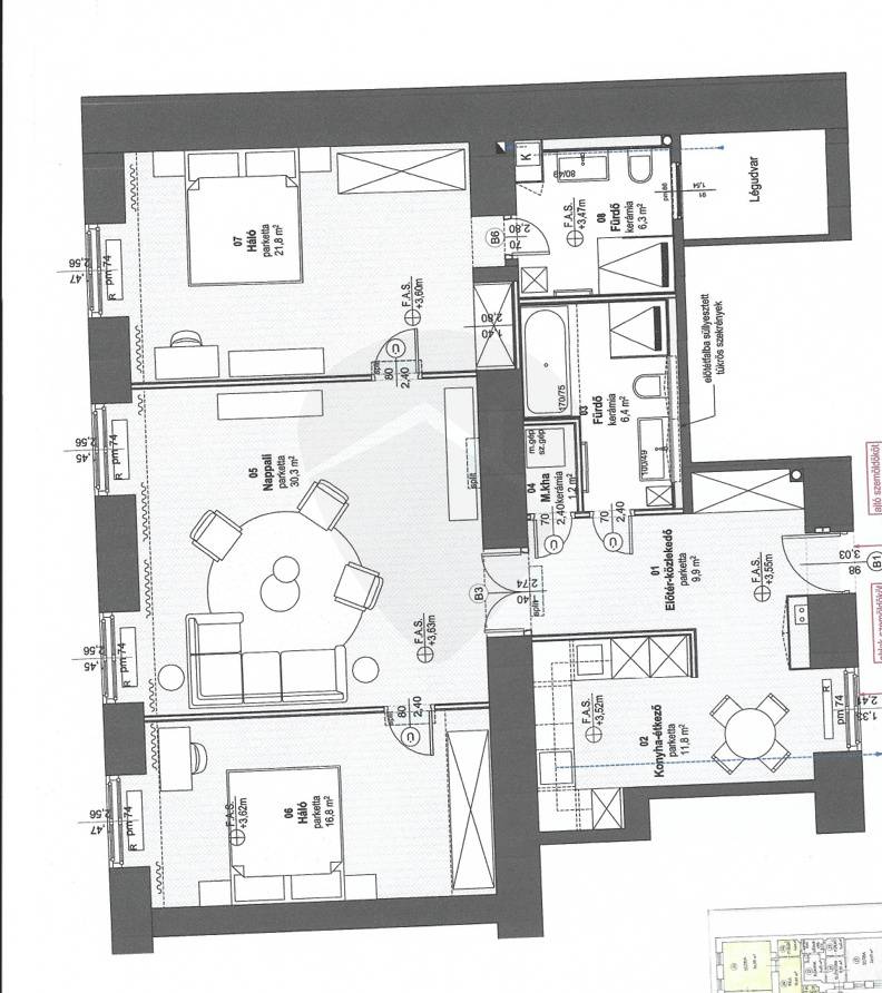
Alapterület: 98 m2
Fűtés: gáz (cirko)
Állapota: új
Szobák száma: 3
Építés éve: -
Szintek száma: -

Részletes leírás

Fektessen be jövőjébe egy kivételes belvárosi lakás megvásárlásával Budapest egyik legelőkelőbb részén! A Hercegprímás utcában található, 98 négyzetméteres, vadonatúj ingatlan nemcsak az elegancia, hanem a kifinomultság szinonimája is. Ez a három szobás, két fürdőszobás lakás a luxus és kényelem tökéletes harmóniáját kínálja, amely megfelel a legmagasabb elvárásoknak is.Az amerikai konyhás, tágas nappali ideális helyszín baráti összejövetelekhez vagy családi eseményekhez, miközben a beépített bútorok és szekrények maximálisan kihasználják a rendelkezésre álló teret. A lakás teljes légkondicionálással rendelkezik, így a nyári hőségben is biztosítja a kellemes hőmérsékletet. A modern LED hangulatvilágítás egyedülálló atmoszférát teremt, amely mindenkit elvarázsol.A lakás elhelyezkedése páratlan, hiszen a csendes környék és a központi lokáció ötvözete lehetővé teszi, hogy percek alatt eljusson Budapest legfontosabb üzleti és kulturális központjaiba. A közeli közlekedési csomópontok révén a város bármely pontja könnyedén megközelíthető, akár autóval, akár tömegközlekedéssel. Az utcán rendelkezésre álló parkolóhelyek pedig kényelmes megoldást nyújtanak az autóval közlekedők számára.A környék infrastrukturális ellátottsága is kiemelkedő: számtalan bolt, étterem és szolgáltatás található a közelben, így a mindennapi élet kényelme garantált. Ez a belvárosi ingatlan nem csupán otthon, hanem egy értékálló befektetés, amely az idő múlásával egyre nagyobb értéket képvisel.Ez a tehermentes, exkluzív ingatlan tökéletes választás mindazok számára, akik modern, világos és stílusos lakást keresnek, vagy hosszú távú befektetést fontolgatnak. Ha bármilyen kérdése lenne a lakással vagy a környékkel kapcsolatban, ne habozzon felvenni velem a kapcsolatot! Készséggel állok rendelkezésére, hogy együtt megtaláljuk az Ön számára ideális ingatlant.

További adatok

Telekterület: -
Kert mérete: -
Erkély mérete: -
Felszereltség: -
Parkolás: -
Kilátás: utcai
Egyéb extrák:  
-

Hirdető adatai

Hirdető neve: Nagy Ingatlan Powered by RH
Kapcsolattartó: Balogh Csaba
Hirdető telefonszáma: +36 70 412 5733
Honlap: -