Ház
Origó
HázOrigoval pont a központban

Komárom-Esztergom megye, Komárom


 

Ingatlan adatai

Irányár: 143 656 000 Ft
Típus: ház
Kategória: eladó
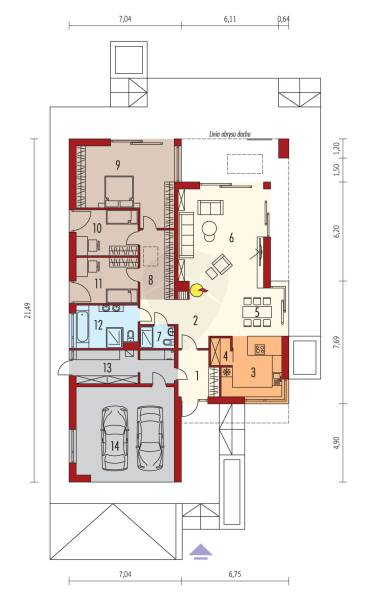
Alapterület: 196 m2
Fűtés: -
Állapota: új
Szobák száma: 3
Építés éve: 2024
Szintek száma: -

Részletes leírás

Kedves Érdeklődő!Örömmel mutatjuk be ezt a modern, újépítésű ingatlant, amely egy biztonságos, barátságos és nyugodt környezetben várja leendő tulajdonosát.**Elhelyezkedés:**Az ingatlan Komárom központi részén, a Térffy Gyula utcában található. Az utca kiváló elhelyezkedése révén könnyedén megközelíthető a város főbb útvonalairól, mind gyalogosan, mind autóval. A környék jól ellátott, számos bolt, iskola és közintézmény található a közelben, így minden fontos szolgáltatás kényelmesen elérhető. Az ingatlan ideális választás azok számára, akik a város nyüzsgésében, mégis otthonos környezetben szeretnének élni.**Műszaki adatok:**- Fűtés:*Hőszivattyú- Alapozás: 0,45 m szélességben és 0,9 m mélységben. A kiásott alapba a vasszerelés 12 mm-es betonacél és 8 mm-es kengyel betonacél erősítéssel történik. A betonozás sávalapban C16 20 KK betonnal készül.- Aljzat: Az aljzat alatti részt 10 cm vastagságban 15/50 mm-es kaviccsal töltjük fel, majd géppel tömörítjük.- Lábazat: Zsalutégla- Szigetelés: 1 rtg. 4 mm-es bitumenes szigetelés- Külső teherhordó falak: POROTHERM 30 N+F- Válaszfalak: POROTHERM 10 N+F- Födém: Ácsolt fa födém, láng-, rovar- és gombamentesítővel kezelve- Hőszigetelés: Az épület padlójának hőszigetelése 10 cm AT-N100 lépésálló hőszigeteléssel készül- Burkolatok:Prémium minőségű laminált padló- Beltéri ajtók:Minőségi beltéri szobaajtók- Nyílászárók:3 rétegű, 7 kamrás ablakok- Elektromos és vízhálózat:Teljesen kiépített, konnektorokkal, kapcsolókkal és relédobozokkal**Fontos megjegyzés:**Az épület műszaki felszereltsége és burkolatai még a te ízlésedre szabhatóak, így valóban saját otthont alakíthatsz ki.Ha bármilyen további információra lenne szükséged, várom a hívásod!

További adatok

Telekterület: 650 m2
Kert mérete: 650 m2
Erkély mérete: -
Felszereltség: -
Parkolás: -
Kilátás: udvari
Egyéb extrák:  
-

Hirdető adatai

Hirdető neve: Nagy Ingatlan Powered by RH
Kapcsolattartó: Petróczy Gréta
Hirdető telefonszáma: +36 70 412 5731
Honlap: -