Ház
Origó
HázOrigoval pont a központban

Budapest, II.kerület


 

Ingatlan adatai

Irányár: 320 000 000 Ft
Típus: iroda
Kategória: eladó
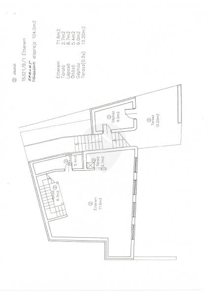
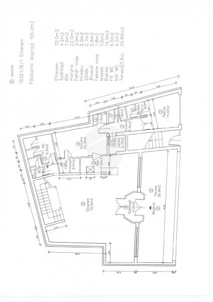
Alapterület: 269 m2
Fűtés: -
Állapota: -
Szobák száma: -
Építés éve: 1990
Szintek száma: -

Részletes leírás

Eladó Befektetésnek is kiváló ingatlant kínálok akár hosszú távú bérlővel.Alkalmas irodának bemutatóteremnek cégközpontnak üzlethelyiségnek.Eladó a II. kerületben Szemlőhegyen, forgalmas főúton, 269 nm-es, üzlethelyiség. 2007-ben teljes felújításon esett át. Budapest központjától 2 km-re található, 2 szintes utcafronti üzlethelyiség, kiválóan alkalmas irodaháznak, iroda bemutatóteremnek, méretű üvegportállal, panorámával, korszerű kivitelezéssel. Alkalmas irodának, cégközpontnak, bemutatóteremnek, vendéglátásra (étteremhez teljes felszerelés bútorzat biztosított) cégközpontnak, egészségügyi központnak, oktató központnak….Parkolás az ingatlan előtt lehetséges.Tömegközlekedéssel és gépkocsival is jól megközelíthető a Szépvölgyi vagy a Pusztaszeri útról, a 91, 291-es buszok megállója 300 m távolságra van.Az ingatlan tehermentes, céggel együtt vagy cég nélkül is megvehető.Jelenleg bérbe van adva, bérlővel vagy bérlő nélkül is megvásárolható.

További adatok

Telekterület: -
Kert mérete: -
Erkély mérete: -
Felszereltség: -
Parkolás: -
Kilátás: -
Egyéb extrák:  
-

Hirdető adatai

Hirdető neve: Nagy Ingatlan Powered by RH
Kapcsolattartó: Nagy Zoltán
Hirdető telefonszáma: +36 70 628 7088
Honlap: -