Ház
Origó
HázOrigoval pont a központban

Budapest, II.kerület


 

Ingatlan adatai

Irányár: 450 000 000 Ft
Típus: lakás (újépítésű)
Kategória: eladó
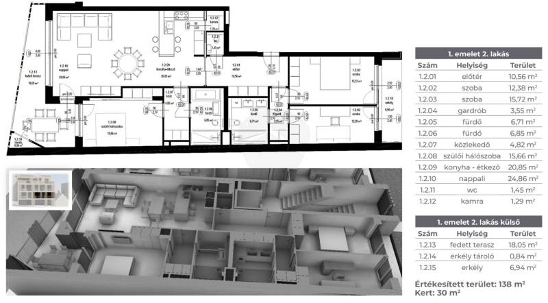
Alapterület: 138 m2
Fűtés: -
Állapota: új
Szobák száma: 4+1
Építés éve: 2023
Szintek száma: -

Részletes leírás

A Margitsziget közvetlen szomszédságában, Budapest egyik legelőkelőbb városrészében kínálunk megvételre egy 138 négyzetméteres, I. emeleti (lakásszám: I/2.), három hálószobás, két fürdőszobás prémium lakást, amely nemcsak otthonként, hanem befektetésként is páratlan lehetőség.Az ingatlan főbb jellemzői:Alapterület: 138 m²Elrendezés: tágas nappali, konyha étkezővel, 3 hálószoba, 2 elegáns fürdőszoba, különálló vendég-WC, gardróbTerasz: 26 m², déli tájolásúFelszereltség: smart home rendszer, mennyezethűtés-fűtés, padlófűtés hőszivattyúvalPrémium életérzés és exkluzív szolgáltatások:Az öt lakásos társasház közös használatú, igényesen kialakított belső díszkerttel és medencével szolgálja a lakók kényelmét.A lakáshoz opcionálisan megvásárolható egy dupla beállós, emelő-süllyesztős garázs, melynek vételára: 30 millió FtAz épület modern, minimál stílusú homlokzattal és belsőépítészeti megoldásokkal készült, utcafrontján üzlethelyiség, illetve 12 gépkocsi beállására alkalmas garázs található.Elhelyezkedés és környezet:A Rózsadomb alsó, városias, mégis zöldövezeti részén található lakás kiváló közlekedési kapcsolatokkal bír, mind autóval, mind tömegközlekedéssel könnyen megközelíthető. Néhány perc sétára található a budai Duna-parti sétány és a Margitsziget.Lenyűgöző panoráma a parkokra és a Budai Várra, kivételes építészeti színvonal, luxus szolgáltatások és páratlan lokáció — ez az M15 Boutique Residence.A lakás négyzetméterára kulcsrakész állapotra (burkolatokkal), bútorozás nélkül értendő.Fedezze fel az M15 Boutique Residence egyedülálló világát – ahol az otthon és a luxus találkozik!

További adatok

Telekterület: -
Kert mérete: -
Erkély mérete: 26 m2
Felszereltség: -
Parkolás: -
Kilátás: kertre néző
Egyéb extrák:  
-

Hirdető adatai

Hirdető neve: Most Home Kft.
Kapcsolattartó: Hatalyák Dalma
Hirdető telefonszáma: +36 70 412 5655
Honlap: -