Ház
Origó
HázOrigoval pont a központban

Pest megye, Nagykovácsi


 

Ingatlan adatai

Irányár: 279 000 000 Ft
Típus: ház
Kategória: eladó
Alapterület: 252 m2
Fűtés: -
Állapota: új
Szobák száma: 6
Építés éve: 2022
Szintek száma: -

Részletes leírás

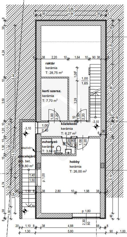
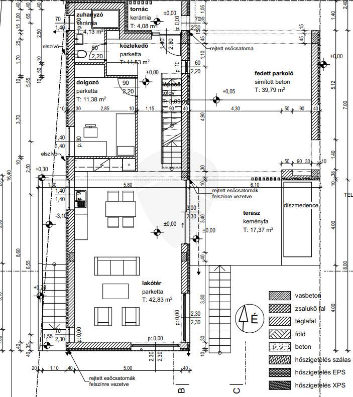
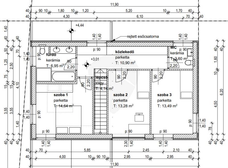
Nagykovácsi egyik legszebb utcájában, a Nagyszénás déli hegyoldalán eladó egy luxus kivitelezési szintű, új építésű, maximálisan energia takarékos, panorámás villa épület 2023 decemberi átadással.A ház szerkezete Porotherm Xtherm téglából, 10cm-es grafitos hőszigeteléssel épül. A nyílászárók 3 rétegű üveggel, fa-alu kialakításúak, mindenhol távirányítású aluminium zsaluziával. A tető korcolt aluminium fedésű. A házhoz 2 db fedett gépkocsi beálló tartozik elektromos autó töltőkkel.A pince szinten egy külön külső bejáratú lakrész épül saját fürdőszoba/wc-vel, valamint itt kapott helyet a nagy tároló és a gépészeti/háztartási helység. A villa a földszinten nappali, konyha, étkező, vendégszoba/dolgozó és fürdő/wc kialakítású, az épület előtt egy 20m2-es déli fekvésű, panorámás terasszal. Az emeleten 3 hálószoba, két fürdőszoba és egy hosszú gardrób folyosó található padlás tárolóval.A ház a legkorszerűbb gépészettel van ellátva, 8kW napelem rendszer SolarEdge inverterrel, 13 kW hőszivattyús padló- és mennyezet hűtés/fűtés, riasztó, entalpiás szellőző berendezés, okos otthon előkészítés. Közel nulla energia felhasználású épület.A vételár tartalmazza a kerti szintek kialakítását termőfölddel, valamint 5 Millió Ft értékben ajándék konyha bútort, szaniter árukat és beltéri világító testeket, kapcsolókat, konnektorokat. A kertben egy ásott kút is található és medence építésére, szauna elhelyezésére is van lehetőség. Belsőépítészünk kérésre komplett tervet készít a villa belső kialakítására a vevő által kívánt stílusban.Nagykovácsiban élni olyan, mint ha minden nap nyaralna! Jöjjön Ön is lakni a csend, a közeli természet, a madár csicsergés, a friss levegő otthonába!

További adatok

Telekterület: 670 m2
Kert mérete: 670 m2
Erkély mérete: 17 m2
Felszereltség: -
Parkolás: -
Kilátás: -
Egyéb extrák:  
-

Hirdető adatai

Hirdető neve: Körmendi Nóra EV.
Kapcsolattartó: Körmendi Nóra
Hirdető telefonszáma: +36 70 467 6775
Honlap: -