Ház
Origó
HázOrigoval pont a központban

Pest megye, Gödöllő


 

Ingatlan adatai

Irányár: 350 000 000 Ft
Típus: ház
Kategória: eladó
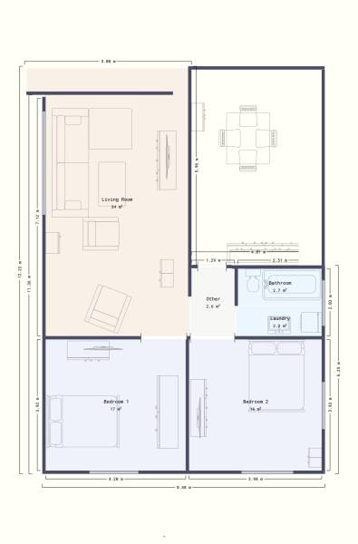
Alapterület: 650 m2
Fűtés: gáz (cirko)
Állapota: -
Szobák száma: 6
Építés éve: 1990
Szintek száma: -

Részletes leírás

Eladásra kínálok Gödöllő kertvárosrészében egy családi házat, amely egyben befektetési és üzleti lehetőség is.Az ingatlan összesen 650 hasznos négyzetméterrel rendelkezik, melyből 380 m2 ipari üzem!Erre a részre minden működési HCCP engedély megvan kérve, ipari áram mindenhova odavezetve. Akár az alsó szintet külön lakrésznek is ki lehet alakítani. Az üzem részen öltöző fürdővel, wc-k és egyéb munkavégzéshez szükséges helyiségek ki vannak alakítva.Az egész házban a villamoshálózat és vízhálózat cserélve lett pár évvel ezelőtt. Négy hálószobával, kettő nappalival, kettő fürdővel, illetve konyhával rendelkezik.Mindkét szinthez tartozik 50-50 négyzetméter terasz melyről az örökpanorámát csodálhatjuk.A melegvízről és fűtésről kondenzációs gázkazán gondoskodik, amelyhez melegvíztároló is van csatlakoztatva. Ezen felül egy vegyestüzelésű kazán is el tudja látni a fűtést.Aki szeretne egy igazán elegáns otthon és egyben a vállalkozásának helyet, akkor ez remek választás lehet!Intor Ingatlan – Otthont biztonságban!---------------------------------------------------------------------------------------------------------------------------Irodánk rendelkezésére áll az értékesítés első lépésétől, egészen az utolsóig. Amennyiben valamelyik ingatlanunkat jelenlegi ingatlanja értékesítése után kívánja megvásárolni, vagy egy megbízható irodával kívánna együttműködni, amely teljeskörű ügyintézést biztosít, megfizethető áron, forduljon hozzánk bizalommal!

További adatok

Telekterület: 541 m2
Kert mérete: 541 m2
Erkély mérete: 100 m2
Felszereltség: -
Parkolás: -
Kilátás: panorámás
Egyéb extrák:  
-

Hirdető adatai

Hirdető neve: Intor Ingatlan Powered By RH
Kapcsolattartó: Kollár Ábel Gergő
Hirdető telefonszáma: +36 70 412 5808
Honlap: -