Ház
Origó
HázOrigoval pont a központban

Győr-Moson-Sopron megye, Felpéc


 

Ingatlan adatai

Irányár: 69 700 000 Ft
Típus: ház
Kategória: eladó
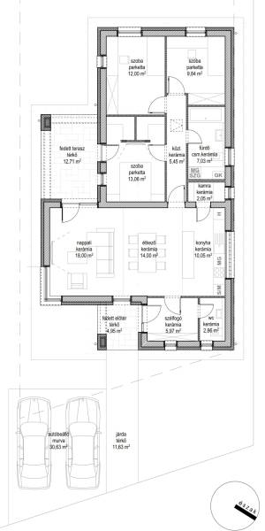
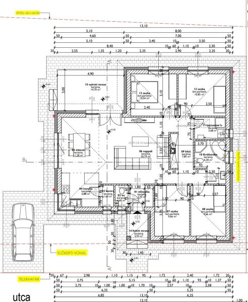
Alapterület: 100 m2
Fűtés: gáz (cirko)
Állapota: új
Szobák száma: 4
Építés éve: 2025
Szintek száma: -

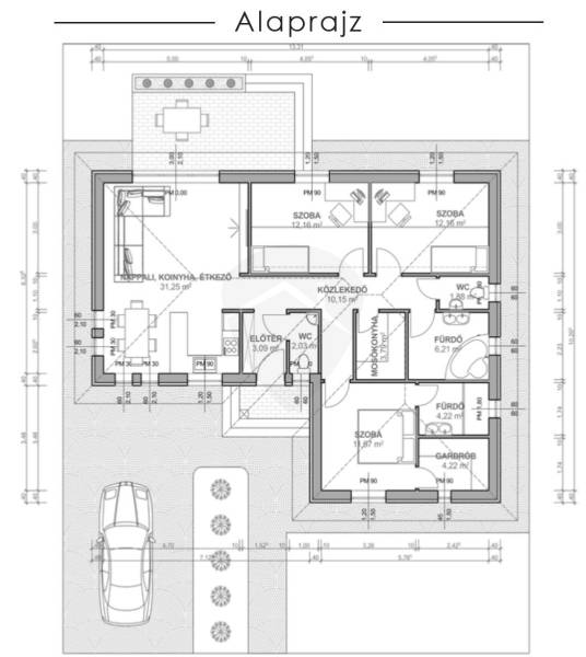
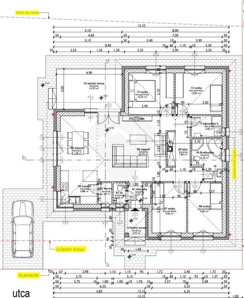
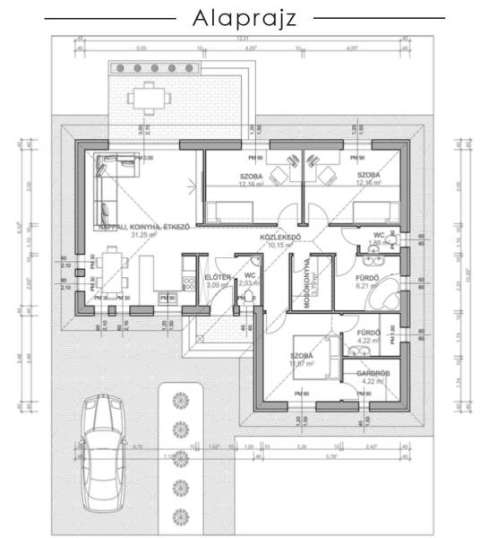
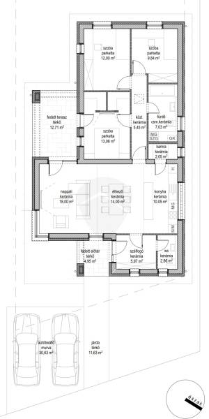
Részletes leírás

Győrtől 20 km-re Felpécen, Új parcellázású részen, újonnan épülő, igényes kialakítású, tégla építésű családi ház leköthető.A nappali + három szobával(vagy akár 4 szobával) rendelkező ingatlan alapterülete nettó 100 m2 + 13 m2-es terasz, mely igény szerint módosítható.A praktikusan tervezett házban a szobákon kívül tágas és napfényes amerikai konyhás nappali, gardrób, kamra, szélfogó, közlekedő, fürdőszoba+wc, háztartási helyiség és külön mellékhelyiség is kialakításra kerül.Az élhető méretű telek összesen 688 m2-es, mely 30%-ban beépíthető.A feltüntetett vételár az emelt szintű fűtés kész árat és a telek árát tartalmazza, de igény esetén kulcsra kész befejezésre is van lehetőség!Az otthon melegéről Bosch Condens kombi gázkazán gondoskodik, a hőleadás padlófűtés és radiátorok kombinációja, de a fűtésrendszer is az ügyfél igényei alapján módosítható.A részletes műszaki leírást kérésére e-mailben elküldöm.Más az elképzelése? Válassza ki Ön a saját elképzeléseinek megfelelő alaprajzot!Amennyiben teljesen egyedi tervezést szeretne, az is lehetséges!A képek látványtervek.Jól átgondolt tervezés, megfelelő szakmai tudás és háttér garantálja a MINŐSÉGI OTTHON megvalósítását!További kérdés esetén állok rendelkezésére!Amennyiben megbízható építtetőt szeretne, referenciamunkákkal, minőségi anyagokkal és kivitelezéssel, hívjon bizalommal akár hétvégén is!Teljes körű ügyintézéssel:- ügyvéd- biztosítás- hiteltanácsadás- Generálkivitelezés- teljeskörű ingatlanfelújítás- CSOK, babváró, áfa visszaigénylés - állunk rendelkezésére!

További adatok

Telekterület: 688 m2
Kert mérete: 688 m2
Erkély mérete: 13 m2
Felszereltség: -
Parkolás: -
Kilátás: kertre néző
Egyéb extrák:  
-

Hirdető adatai

Hirdető neve: B&B Ingatlan powered by RH tanácsadói
Kapcsolattartó: Balogh János
Hirdető telefonszáma: +36 30 651 4841
Honlap: -